Budapest, XIII.kerület
 

Ingatlan adatai
Irányár: 143 000 000 Ft
Típus: lakás (újépítésű)
Kategória: eladó
Alapterület: 76 m2
Fűtés: -
Állapota: új
Szobák száma: 3
Építés éve: -
Szintek száma: -
Részletes leírás
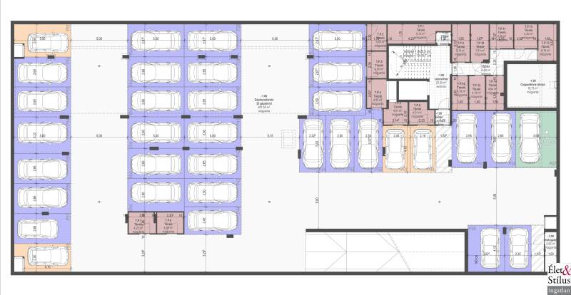
A 13. kerület, egyik legkedveltebb részén, Angyalföldön, közel a Göncz Árpád városközponthoz és a Róbert Károly körúthoz, egy újépítésű, 54 lakásos, 6 emeletes társasház, földszintjén, egy 76 nm-es, 3 szobás, összkomfortos, 11 nm teraszos, kertkapcsolatos lakás eladó.Ingatlanunkba belépve, előszobánkból, hatalmas, 35 nm-es nappali-konyha-étkezőnkbe érkezhetünk.Közlekedőnkben balra fordulva, két különbejáratú hálószobánkba, a szemközti oldalon, káddal, toalettel felszerelt fürdönkbe és külön mellékhelyiségünkbe juthatunk.Mind hálószobáinkból, mind nappalinkból, egyaránt kiléphetünk 11 nm-es teraszunkra, ahonnan lelépve, 54 nm-es saját kertünkben találhatjuk magunkat.A műszaki felszereltség tekintetében, vasbeton monolit födém, 30 cm vastag Porotherm falazat, 15 cm-es hőszigetelés, 10 cm-es szintén Porotherm tégla válaszfalak kerülnek kialakításra.A lakások közötti elválasztó falak hangszigeteléssel vannak ellátva.A lakás, az egész épület fűtése, korszerű, levegő-víz hőszivattyús rendszeren alapul, amely fan-coil hűtés-fűtéssel és padlófűtéssel kombinálva növeli komfortérzetünket.Mindenhol egyedi mérőórák (víz, villany, hőmennyiség), hő és hangszigetelő, 3 rétegű üveg, 7 kamrás műanyag nyilászárók kerültek kialakításra.Ezen felül aluminium redőnyök és riasztórendszerek kiépítésének lehetőségét készitjük elő.A kulcsrakész lakások, 2 szobás 39-43 nm; 3 szobás 68-76 nm és 4 szobás 79-93 nm nagyságban kerülnek kialakításra.Ami nálunk természetes, mindegyik lakásunkhoz erkély is tartozik.Tömegközlekedés szempontjából is el vagyunk kényeztetve. A 32-es és 120-as busz, az 1-es villamos vagy a 3-as, kék metró is pár perc sétára található otthonunktól.Teremgarázsaink 8-10 millió forint között megvásárolhatóak.Elektromos autó töltésének kialakítására is lehetőség van igény szerint.3-5 nm-es tárolóink négyzetméterára 900 ezer forint/nm.Irányár: 143 millió forintProjektünkben, két és négyszobás lakások is megtalálhatóak.Szaka József +36 30 691 0908 Élet&Stílus IngatlanirodaTovábbi ingatlanokat a honlapunkon talál: eletstilusingatlan huENERGETIKAI TANÚSÍTVÁNY (zöldkártya ingatlanhoz)2012. január 1.-től a használt lakások adásvételénél is kötelező! Hívjon! Elkészítjük Önnek!ÜGYVÉD-0,7%Megbízható ügyvédre van szüksége? Irodánk ügyvédje a vételár 0,7 %-ért elkészíti az adásvételi szerződését. Ha kínálatunkból vásárol, akkor még ennél kedvezőbb is lehet ez a díj.LAKÁSBIZTOSÍTÁSIngatlant vásárolt? Vagy a régi biztosítását lecserélné? A Magyarországon tevékenykedő összes biztosító ajánlatai közül kiválasztjuk Önnek az árban és a szolgáltatás minőségében a leginkább megfelelőt. Mindezt teljesen ingyen.HITELCégünk hiteltanácsadója - a velünk leszerződött - Magyarországon található összes bank ajánlata közül megtalálja Önnek személyre szabottan a legjobbat!LAKBERENDEZÉSNincs ötlete, hogy mit lehetne kihozni a lakásából, hogyan lehetne újjá varázsolni? Mi segítünk Önnek!LAKÁSFELÚJÍTÁSMegbízható szakemberre lenne szüksége a lakásfelújításhoz? Nálunk megtalálja!
További adatok
Telekterület: -
Kert mérete: -
Erkély mérete: 11 m2
Felszereltség: -
Parkolás: -
Kilátás: kertre néző
Egyéb extrák:  
-
Hirdető adatai
Hirdető neve: Élet&Stílus Ingatlaniroda
Kapcsolattartó: Szaka József
Hirdető telefonszáma: +36 30 691 0908
Honlap: -