Tolna megye, Szekszárd
 

Ingatlan adatai
Irányár: 37 500 000 Ft
Típus: lakás (tégla)
Kategória: eladó
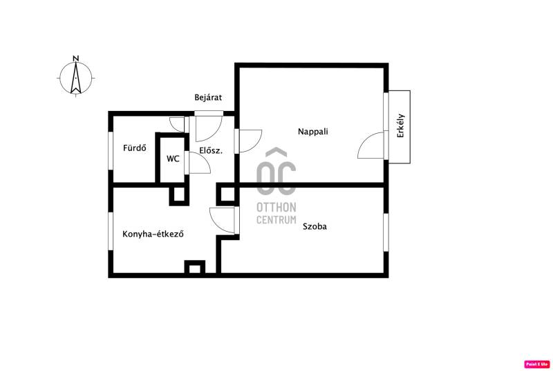
Alapterület: 50 m2
Fűtés: gáz (konvektor)
Állapota: -
Szobák száma: 2
Építés éve: 1960
Szintek száma: -
Részletes leírás
Városközponti, első emeleti, erkélyes lakás várja új tulajdonosát Szekszárdon a Wosinsky lakótelepen.A világos lakásban van 2 külön nyíló teljes értékű szoba, külön WC, fürdőszoba, jól belerendezett konyha-étkező, gardrób szekrények.A lakáshoz tartozik közös tároló és önálló tároló is.A lakás ideális az alacsony rezsi költségek miatt, családi házból beköltöző egyedülállónak, vagy fiatal párnak kezdő lakásnak.Menjünk nézzük meg minél hamarabb, hogy még ezen az áron meg tudd vásárolni!Regisztrációs szám: H516466Teljes körű pénzügyi megoldások ügyintézése díjmentesen.Minden élethelyzetre végzünk pénzügyi elemzést - ha vásárolni szeretne, segítünk, hogy ezt a legjobb feltételek mellett tegye; ha eladni szeretné ingatlanát, nézzük meg, hátha érdemes meglévő hitelét átváltani.Keressen bizalommal, szakértők vagyunk!
További adatok
Telekterület: -
Kert mérete: -
Erkély mérete: 2 m2
Felszereltség: -
Parkolás: -
Kilátás: kertre néző
Egyéb extrák:  
-
Hirdető adatai
Hirdető neve: Otthon Centrum
Kapcsolattartó: Bihary Szabolcs
Hirdető telefonszáma: +36 70 716 9966
Honlap: -