Pest megye, Pócsmegyer
 

Ingatlan adatai
Irányár: 80 000 000 Ft
Típus: ház
Kategória: eladó
Alapterület: 80 m2
Fűtés: -
Állapota: új
Szobák száma: 3
Építés éve: 2026
Szintek száma: -
Részletes leírás
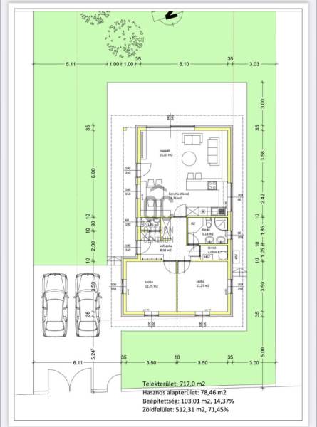
Fiatalok, családosok, kiköltözők figyelem!!! Pócsmegyer csendes, mégis dinamikusan fejlődő surányi részén kínálunk eladásra egy új építésű, könnyűszerkezetes házat! A 80 nm-es ingatlan egy 717 nm-es telken helyezkedik el, a ház tágas és világos, modern dizájnnal és minimalista kialakítással rendelkezik. Az amerikai konyhás nappali a középpontja a lakásnak, ahol a család és a barátok kényelmesen elférnek. A hatalmas 21 nm-es kertkapcsolatos terasz pedig tovább bővíti a lehetőségeket és a teret. A fürdőszoba egyedi megoldásaival a mindennapokat könnyíti meg, míg a hőszivattyús fűtés és a klíma garantálja a kellemes hőmérsékletet egész évben. Az ingatlan akadálymentesített, így idősebb vagy mozgásában korlátozott személy számára is megfelelő lehet. A környék kiváló adottságokkal rendelkezik. Pócsmegyer csendes utcái és a természet közelsége ideális környezetet biztosítanak azok számára, akik a városi élet nyüzsgésétől távol, de mégis az agglomerációban szeretnének élni. A közlekedési lehetőségek is kedvezőek, hiszen a közeli buszmegállóból gyorsan elérheti a fővárost, így a napi ingázás is egyszerű és kényelmes. A közelben található üzletek, éttermek és szabadidős lehetőségek pedig tovább növelik az ingatlan vonzerejét. Ez a modern, világos és tágas otthon nemcsak lakóhely, hanem életstílus is, amely lehetőséget ad arra, hogy a mindennapokban a kényelmet és a nyugalmat élhesse át. Műszaki paraméterek : Cascade hőszivattyú Gree klíma 20 cm szigetelés elektromos redőny Az ingatlan kulcsrakész átadása júliusban várható! Addig is megtekinthető egy ugyanezekkel a paraméterekkel épült ház, ami a képeken is szerepel! Bármilyen kérdés esetén keressen nyugodtan!
További adatok
Telekterület: 717 m2
Kert mérete: 717 m2
Erkély mérete: 21 m2
Felszereltség: -
Parkolás: -
Kilátás: -
Egyéb extrák:  
-
Hirdető adatai
Hirdető neve: Otthon Centrum
Kapcsolattartó: Déri Dóra
Hirdető telefonszáma: +36 70 388 5061
Honlap: -