Budapest, XXII.kerület
 

Ingatlan adatai
Irányár: 124 000 000 Ft
Típus: lakás (tégla)
Kategória: eladó
Alapterület: 119 m2
Fűtés: gáz (cirko)
Állapota: -
Szobák száma: 4
Építés éve: 1995
Szintek száma: -
Részletes leírás
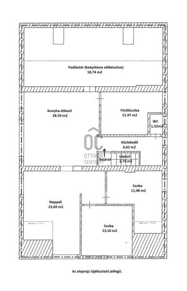
XXII. kerületben, Budafokon, a kerület egyik legkedveltebb környékén, csendes utcában eladó egy nappali + 3 hálószobás lakás. Az eladó lakás a ház teljes második emeletén helyezkedik el, praktikus kialakítású és akár további 2 szobával bővíthető. Az 1990-es években épült 3 lakásos ház téglából épült, zárt lépcsőházas, tiszta, rendezett. A lakásban amerikai konyhás nappalit, három szobát, fürdőszobát, külön wc-t találunk. A lakásból nyíló tetőtér beépítésével (a beépítés elő van készítve) további 2 szoba is kialakítható, így a lakás egy nagyobb család igényeit is kiszolgálja.A lakás 2017-ben került kialakításra, a nyílászárók jó állapotúak, fából készültek, egy részük redőnyös. A lakásban lévő meleg- és hidegburkolatok megkíméltek, egyedi cirkófűtés van és egy légkondicionáló is felszerelésre került, amely hűtésre és fűtésre is alkalmas. A használati meleg víz gázkazánnal és villanybojlerrel is előállítható. A rezsi tervezhető, minden fogyasztás szerint fizetendő, a közös költség nincs. A lakáshoz tartozik egy nagy méretű önálló és egy közös tárolóhelyiség a pince szinten. A képeken látható saját, kizárólagos használatban lévő kert lekerített, pihenésre, kertészkedésre, kikapcsolódásra használható, vízórával és kiépített árammal is rendelkezik. A környék igazi kertvárosi hangulatot tükröz, kitűnő választás, ha Ön családjával zöldövezetben szeretne lakni.A tömegközlekedés kiváló, buszmegálló pár percre, bevásárlóközpontok 10 perc alatt elérhetőek. Óvoda, iskola sétatávolságra találhatóak.Vadonatúj ajánlat, további részletekért és a megtekintés miatt keressen bizalommal! Hétvégén is dolgozom.
További adatok
Telekterület: -
Kert mérete: -
Erkély mérete: -
Felszereltség: -
Parkolás: -
Kilátás: utcai
Egyéb extrák:  
-
Hirdető adatai
Hirdető neve: Otthon Centrum
Kapcsolattartó: Gaál Emese
Hirdető telefonszáma: +36 70 716 9836
Honlap: -