Budapest, III.kerület
 

Ingatlan adatai
Irányár: 138 000 000 Ft
Típus: lakás (újépítésű)
Kategória: eladó
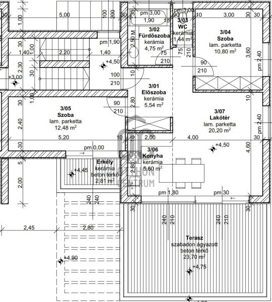
Alapterület: 61 m2
Fűtés: -
Állapota: új
Szobák száma: 3
Építés éve: 2025
Szintek száma: -
Részletes leírás
Eladó a III. kerület közkedvelt, zöldövezeti részén, az Almáskert utcában egy 61 m²-es, 3 szobás, újépítésű lakás, egy mindössze négy lakásos, exkluzív társasház első emeletén.Az ingatlan modern kialakításának és kiváló elosztásának köszönhetően ideális választás akár családok, akár befektetők számára. A lakás egyik legnagyobb értéke a tágas, panorámás terasz, amely tökéletes helyszínt biztosít a mindennapi kikapcsolódáshoz és a természet közelségének élvezetéhez.A lakás teljesen új, gépesített konyhával kerül átadásra, így az új tulajdonosnak ezzel már nem lesz teendője. Az ingatlan első lakója lehet.Az otthon komfortját tovább növeli a hőszivattyús fűtés-hűtés rendszer, valamint az okosotthon előkészítés, amely számos modern technológiai megoldás integrálását teszi lehetővé (pl. árnyékolástechnika, világítás, szellőztetés, öntözőrendszer, helyiségenkénti hőmérséklet-szabályozás).A praktikus elrendezés részeként:különnyíló szobákkülön WC és fürdőszobanagy méretű teraszAz ingatlan egy csendes, nyugodt, családias környezetben található, ahol a természet közelsége és a friss levegő garantált. A környék kiváló infrastruktúrával rendelkezik, tömegközlekedési lehetőségek (busz, vonat) pár perc sétával elérhetők.Az épület „minimális energiaigényű” besorolású, amely a jelenlegi technológiáknak köszönhetően rendkívül alacsony fenntartási költségeket biztosít, és messze meghaladja a közel nulla energiaigényre vonatkozó előírásokat.Garázs opcionálisan megvásárolható: 10.000.000 FtEz az intim, kis lakásszámú társasház ideális választás azok számára, akik modern, energiatakarékos, mégis nyugodt környezetben szeretnének élni.Igény esetén bankfüggetlen hitelügyintézéssel, teljes körű CSOK Plusz és Otthon Start Program ügyintézéssel állunk rendelkezésére.
További adatok
Telekterület: -
Kert mérete: -
Erkély mérete: 27 m2
Felszereltség: -
Parkolás: -
Kilátás: kertre néző
Egyéb extrák:  
-
Hirdető adatai
Hirdető neve: Otthon Centrum
Kapcsolattartó: Simon Nikolett
Hirdető telefonszáma: +36 70 388 5956
Honlap: -