Budapest, XIII.kerület
 

Ingatlan adatai
Irányár: 91 000 000 Ft
Típus: lakás (tégla)
Kategória: eladó
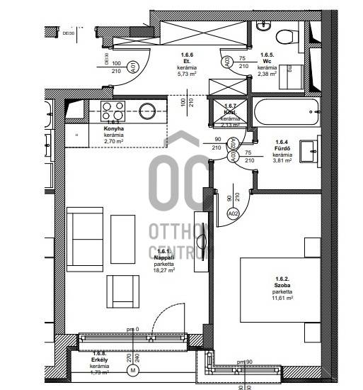
Alapterület: 46 m2
Fűtés: házközponti egyedi méréssel
Állapota: -
Szobák száma: 2
Építés éve: 2019
Szintek száma: -
Részletes leírás
2019 építésű, kiváló állapotú , ideális elosztású eladó lakás a Csata utcában!Utcai nézetű, erkélyes, 2 szobás ingatlan.Kiváló állapotú, liftes, gondozott társasházban. Helyiségek:Előszoba 6m2Nappali-konyha 22m2Fürdőszoba 4m2WC-kézmosó 2,3m2Szoba 12m2 Erkély 2m2Belmagasság 265cmFűtés: Házközponti egyedi mérésselLégkondicionáltKonyha bútorozott és gépesítettAz ablakok redőnnyel felszereltek.A társasház aljában tároló, gépjármű beálló bérelhető.A környék infrastruktúrája kiemelkedő, minden elérhető sétatávolságra, ami a mindennapi élethez szükséges.Egyedi igényekre szabott lakáshitelekkel állunk rendelkezésére.Bankfüggetlen Hitel Centrumunk az országban elérhető összes bank és hitelintézet ajánlatát versenyezteti az Ön számára díjmentesen.Igény esetén ügyvédet is biztosítunk. Megtekintés előtt időpont egyeztetés szükséges. Várom hívását!
További adatok
Telekterület: -
Kert mérete: -
Erkély mérete: 2 m2
Felszereltség: -
Parkolás: -
Kilátás: utcai
Egyéb extrák:  
-
Hirdető adatai
Hirdető neve: Otthon Centrum
Kapcsolattartó: Tarrósi Szilvia
Hirdető telefonszáma: +36 70 469 3011
Honlap: -