Pest megye, Pilisvörösvár
 

Ingatlan adatai
Irányár: 67 000 000 Ft
Típus: iroda
Kategória: eladó
Alapterület: 169 m2
Fűtés: -
Állapota: -
Szobák száma: -
Építés éve: -
Szintek száma: -
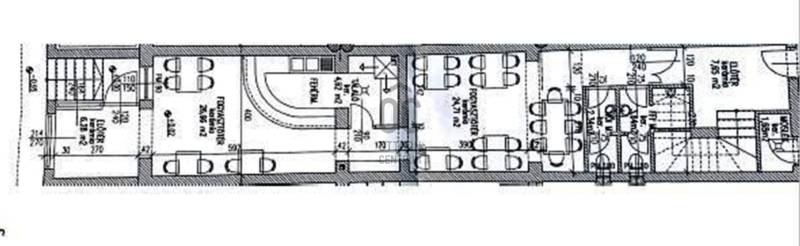
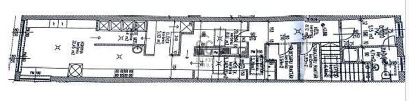
Részletes leírás
Vállalkozók, befektetők részére, eladásra kínálunk pilisvörösvári központi üzletsoron, egy remek ár-érték arányú, felújítandó kétszintes ingatlant.A kétszintes ingatlan nettó össz. alapterülete 182 m2 (szintenként ~91 m2), telek mérete 169 m2.A korábban üzletként működő épület, utcafronti bejárattal és hátsó bejárattal (árufogadó) egyaránt rendelkezik, üzlet előtt közvetlen parkolási lehetőség van.Ingatlan kialakítása: Földszinten, a bejárat után van az eladótér, ezt követően a raktárrész és vizesblokk található, valamint hátsó bejáratnál a lépcső, ami az emeletre vezet, ahol korábban szintén raktár volt, illetve vizesblokk és irodarész.Az emeleti rész gyakorlatilag egy válaszfalak nélküli nagy tér, így leendő tulajdonos, az emeletet igényei szerint tudja kialakítani. Lépcsőnél a két szint akár külön is választható.A lenti üzlet mellett, így az emeletet más célra is tudja használni, kialakítani, mint pl.: lakás, iroda, fitneszterem stb.Az üzletsor tetőszerkezetének 2023-as tűzesete, érintette ezt az ingatlant is, mely után teljesen új tetőszerkezet került megépítésre, valamint az emeleten új hőszigetelt ablakok kerültek beépítésre. Továbbiakban, az épület felújítását már az új tulajdonos végezheti igényei szerint.Legyen Ön a felújítást követően, egy nagy értékű, frekventált helyen lévő ingatlannak tulajdonosa, hiszen a településen kevés hasonló adottságokkal rendelkező ingatlan található.
További adatok
Telekterület: -
Kert mérete: -
Erkély mérete: -
Felszereltség: -
Parkolás: -
Kilátás: -
Egyéb extrák:  
-
Hirdető adatai
Hirdető neve: Otthon Centrum
Kapcsolattartó: Horváth László
Hirdető telefonszáma: +36 70 461 9401
Honlap: -