Budapest, XXII.kerület
 

Ingatlan adatai
Irányár: 49 900 000 Ft
Típus: lakás (tégla)
Kategória: eladó
Alapterület: 43 m2
Fűtés: gáz (cirko)
Állapota: -
Szobák száma: 1
Építés éve: 1950
Szintek száma: -
Részletes leírás
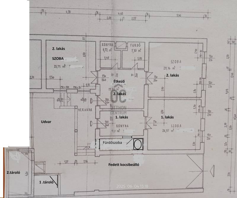
Eladásra kínálok Budafok központi részén a vasútállomás közelében egy 3 felé osztott tégla épület 43 nm-es lakását.Az ingatlan osztatlan közös tulajdonban van, használati megosztással kerül új tulajdonosa nevére.Az épületet két utca határolja körbe, a garzon lakásunkhoz a bejárat a Mária Terézia utca felől közelíthető meg. KERTEN BELÜL EGY 2 SZOBÁS LAKÁS IS ELADÓ!Az ingatlant pár évvel ezelőtt felújították:- műanyag nyílászárók, redőnnyel- új fűtési rendszer Mika kazánnal- laminált padló a szobában- járólap a konyhában- réz villanyvezetékekAz ingatlan további előnyei:- tetőtér beépítés lehetséges!- közös kerthasználat- autó beállási lehetőség- saját tároló- saját pince részA lakás mellett egy nagyobb 78 nm-es 2 szobás lakás is eladó.Lehetőség van a két lakást egyben is megvásárolni, 133.800.000.FtHa szeretné a családot egy helyen de mégis külön lakásban elhelyezni ennél jobb megoldást keresve sem talál ezen a környéken.A közelben minden megtalálható amire csak szükség lehet.A parkolás az ház előtt ingyenes.Alaprajzon a kis lakás 1.-es lakásként a nagy lakást 2-es lakásként szerepel!Az energetikai tanúsítvány készítése folyamatban van, amint rendelkezésre áll, úgy azzal a hirdetés frissítésre kerül.Bővebb tájékoztatás telefonon!Várom hívását!
További adatok
Telekterület: -
Kert mérete: -
Erkély mérete: 4 m2
Felszereltség: -
Parkolás: -
Kilátás: utcai
Egyéb extrák:  
-
Hirdető adatai
Hirdető neve: Otthon Centrum
Kapcsolattartó: Kiss Adrienn
Hirdető telefonszáma: +36 70 388 5181
Honlap: -