Budapest, XI.kerület
Sasad 

Ingatlan adatai
Irányár: 665 000 000 Ft
Típus: ház
Kategória: eladó
Alapterület: 560 m2
Fűtés: -
Állapota: -
Szobák száma: 8
Építés éve: 2003
Szintek száma: -
Részletes leírás
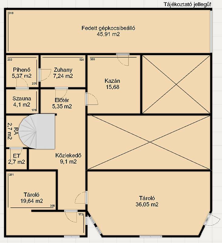
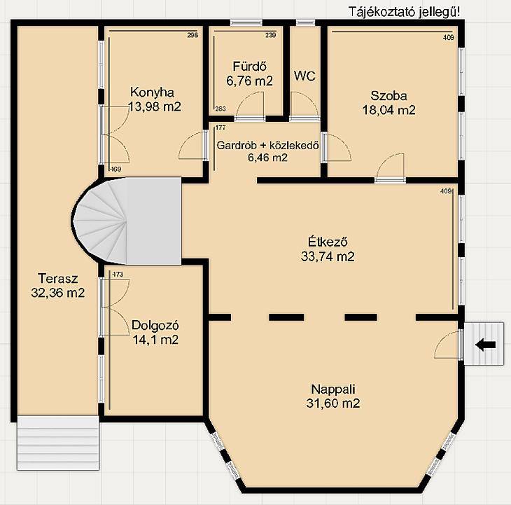
Kizárólag irodánk kínálatában!Eladásra kínálunk a Pannonhalmi úton egy kivételes adottságokkal rendelkező, 665 nm-es, tágas családi házat, amely egy 1089 nm-es telken helyezkedik el, nyugodt, kellemes környezetben.Az ingatlan 2003-ban épült, masszív szerkezettel és átgondolt elrendezéssel, amely ideális akár többgenerációs együttélésre vagy nagyobb család számára is. A ház minden szintje a kényelmet és a funkcionalitást szolgálja.A pince szinten praktikus tárolóhelyiségek, valamint egy kétállásos garázs kapott helyet, amely kényelmes parkolást biztosít. A földszinten világos és jól kihasználható terek várják: konyha, étkező, tágas nappali, hálószoba, dolgozószoba, fürdőszoba és gardrób biztosítják a mindennapi élet kényelmét.Az első emeleten további három hálószoba, egy nappali, fürdőszoba és gardrób található, valamint egy terasz, ahonnan lenyűgöző panorámás kilátás tárul elénk. A tetőtér egy 100 nm-es, egybefüggő tér, amely számtalan lehetőséget kínál – legyen szó akár további lakótérről, hobby helyiségről vagy irodáról.Az otthon fűtéséről egy új Bosch kazán gondoskodik, amely hatékony és megbízható működést biztosít.Ez az ingatlan tökéletes választás azok számára, akik tágas, jól variálható tereket, nyugalmat és panorámás kilátást keresnek egy értékálló otthonban.További kérdés esetén vagy időpont egyeztetés céljából, keressen minket bizalommal.Az ingatlan banki finanszírozással is megvásárolható, kérje ingyenes konzultációnkat.Vevőink részére a közvetítés díjmentes!
További adatok
Telekterület: 1 089 m2
Kert mérete: 1 089 m2
Erkély mérete: -
Felszereltség: -
Parkolás: -
Kilátás: panorámás
Egyéb extrák:  
-
Hirdető adatai
Hirdető neve: MPD Hungary Kft.
Kapcsolattartó: Undici Quartiere Kft
Hirdető telefonszáma: +36703153596
Honlap: -