Pest megye, Délegyháza
 

Ingatlan adatai
Irányár: 129 900 000 Ft
Típus: ház
Kategória: eladó
Alapterület: 175 m2
Fűtés: gáz (cirko)
Állapota: -
Szobák száma: 6
Építés éve: 2016
Szintek száma: -
Részletes leírás
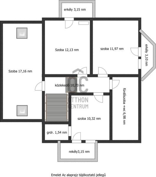
TÁGAS, MODERN IKERHÁZ ELADÓ Délegyháza KÖZPONTKÖZELI RÉSZÉN – IDEÁLIS NAGYCSALÁDOKNAK! Ha egy nagy terekkel rendelkező, jól átgondolt elrendezésű otthont keres nyugodt, mégis jól ellátott környéken, akkor ezt az ingatlant érdemes megnéznie!Eladásra kínálunk egy 2016-ban épült, 175 m²-es, kétszintes ikerházat egy 427 m²-es, gondozott telken, **Délegyháza egyik kedvelt, központhoz közeli részén. FŐBB PARAMÉTEREK6 szoba + nappali – ideális nagycsaládoknak2 fürdőszobaKiváló térkihasználás, praktikus elrendezés427 m²-es, rendezett telek ÁTGONDOLT ELOSZTÁS – KÉNYELMES MINDENNAPOKFöldszint:nappali + étkező + konyhaszülői hálószobadolgozószobazuhanyzós fürdőkülön WCkamra, mosókonyhaFélemelet:1 szobaEmelet:3 külön nyíló szoba (mind erkélykapcsolattal!)kádas fürdőszoba WC-vel Tökéletesen elkülöníthető életterek – akár több generáció számára is! MŰSZAKI TARTALOMPOROTHERM 38 falazat10 cm homlokzati szigetelésBramac tetőcserépAriston kondenzációs gázkazán (fűtés + melegvíz)műanyag nyílászárók, több helyen szúnyoghálóvalrezsi kb. 50.000 Ft/hó KERT ÉS EXTRÁK gondozott, részben térkövezett udvar fúrt kút + automata öntözőrendszer + csepegtető nagyméretű kerti tároló riasztórendszer udvari beálló + utcán több autó számára parkolás A kert ideális medence, grillező vagy játszótér kialakítására is! ELHELYEZKEDÉS – MINDEN KÖZELA ház **Délegyháza központközeli részén található: iskola, óvoda, bölcsőde orvosi rendelő buszmegálló éttermek, fagyizó, ATM minden kb. 10 perc sétával elérhető KINEK AJÁNLJUK?nagycsaládosoknakösszeköltözőknekotthonról dolgozóknakakik tágas, modern, jól élhető otthont keresnek kerttel Ez az ingatlan a tér, a funkcionalitás és a nyugalom tökéletes kombinációja!Épitési tervdokumentáció rendelkezésre áll. Hívjon bizalommal, és nézze meg személyesen – ez a ház élőben még többet ad!
További adatok
Telekterület: 427 m2
Kert mérete: 427 m2
Erkély mérete: -
Felszereltség: -
Parkolás: -
Kilátás: -
Egyéb extrák:  
-
Hirdető adatai
Hirdető neve: Otthon Centrum
Kapcsolattartó: Gál Jánosné
Hirdető telefonszáma: +36 70 465 7056
Honlap: -