Pest megye, Monor
 

Ingatlan adatai
Irányár: 80 000 000 Ft
Típus: ház
Kategória: eladó
Alapterület: 76 m2
Fűtés: -
Állapota: -
Szobák száma: 1+3
Építés éve: 2026
Szintek száma: -
Részletes leírás
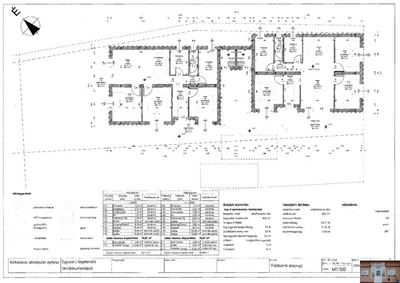
HASZNÁLJA KI A CSOK+ KAMATTÁMOGATOTT HITEL ELŐNYEIT, A 4% ILLETÉKKEDVEZMÉNYT, VALAMINT A 3%-OS OTTHON START HITELT!!!!!!10 % FOGLALÓVAL LEKÖTHETŐ!!!Monor kertvárosában 2 db társasházi lakás épül saját telekkel, közös kocsibeállóval melyek MÁR FOGLALÓZHATÓAK!!!Az 1. lakás lakóterülete 76,87 m2, melyben előszoba (5,11 m2), nappali (18,36 m2), konyha-étkező (8,14 m2), közlekedő (2,75 m2), 1. szoba (10,15 m2), 2. szoba (9,49 m2), 3. szoba (9,36), fürdőszoba (7,12 m2), WC (1,35 m2), és háztartási helyiség (5,04 m2) található, valamint egy fedett terasz (12,42 m2) van a bejárat előtt. A két lakás nem ér össze, közöttük kerti tároló (2,81 m2) van.Az ingatlanhoz kb. 50 m2 saját telek tartozik.Fűtés: hőszivattyúval („H” tarifa), hőleadás padlófűtéssel, valamint inverteres klímával.Közművek közül vezetékes víz, villany („H” tarifával), és csatorna bevezetésre kerül.ÁRA: 77.000.000.- FtA 2. lakás lakóterülete 76,07 m2, melyben előszoba (5,11 m2), nappali (18,11 m2), konyha-étkező (3,86 m2), közlekedő (3,32 m2), 1. szoba (10,15 m2), 2. szoba (10,98 m2), 3. szoba (10,98), fürdőszoba (7,08 m2), WC (1,44 m2), és háztartási helyiség (5,04 m2) található, valamint a bejárati ajtó előtt egy előtér (4,01 m2), és egy fedett terasz (10,00 m2) kapcsolódik a nappalihoz. A két lakás között kerti tároló (2,81 m2) van.Az ingatlanhoz kb. 400 m2 saját telek tartozik.Fűtés: hőszivattyúval („H” tarifa), hőleadás padlófűtéssel, valamint inverteres klímával.Közművek közül a villany („H” tarifával), és vezetékes víz kerül bevezetésre, a szennyvízelvezetés zárt rendszerű emésztőbe történik.ÁRA: 80.000.000.- FtA lakások ytongból épülnek 10 cm külső dryvit szigeteléssel, a födémet 30 cm-es kőzetgyapottal szigetelik, a nyílászárók 3 rétegű, hőszigetelt műanyagok. A locsoláshoz fúrt kút van.Elektromos kapu!Burkolatok 10.000.- Ft/m2 árig választhatóak.Átadás: 2026. októberDÍJMENTES HITELÜGYINTÉZÉS IRODÁNKBAN!!!OTTHON START HITEL, CSOK+, BABAVÁRÓ KÖLCSÖN, KAMATTÁMOGATOTT LAKÁSHITELEK, ….2003 ÓTA AZ ÖNÖK BIZALMÁBAN!
További adatok
Telekterület: 400 m2
Kert mérete: 400 m2
Erkély mérete: 10 m2
Felszereltség: -
Parkolás: -
Kilátás: -
Egyéb extrák:  
-
Hirdető adatai
Hirdető neve: Judit Ingatlairoda Kft.
Kapcsolattartó: Moldván Judit
Hirdető telefonszáma: 06-30-625-5266
Honlap: -