Budapest, XIV.kerület
 

Ingatlan adatai
Irányár: 2 193 941 Ft/hó
Típus: iroda
Kategória: kiadó
Alapterület: 633 m2
Fűtés: -
Állapota: -
Szobák száma: -
Építés éve: 2001
Szintek száma: -
Részletes leírás
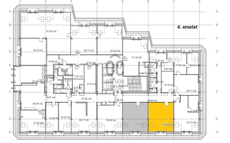
XIV. KER., „B” KATEGÓRIÁS IRODAHÁZBAN 633 m2 BÉRBEADÓ IRODATERÜLET TEREMGARÁZS HELYEKKEL, 24 ÓRÁS RECEPCIÓVAL, SAJÁT ÉTTEREMMEL XIV. Ker. LEGFORGALMASABB CSOMÓPONTJÁBAN, A HUNGÁRIA KÖRÚT ÉS A THÖKÖLY ÚT KERESZTEZŐDÉSÉNEK KÖZVETLEN VONZÁSKÖRZETÉBEN, egy 5 szintes „B” kategóriás irodaházban kínálunk bérbeadásra 633 m2 irodaterületet 24 ÓRÁS RECEPCIÓSZOLGÁLATTAL, és bérelhető TEREMGARÁZS HELYEKKEL (+100 Eur/db+áfa).A bérbeadó irodaterület legnagyobb 595 m2-es része a 2., a kisebb 38,5 m2 területe, pedig az irodaépület 4. emeletén helyezkedik el. Az épület összes szintjét -a teremgarázst is beleértve- 3db LIFT köti össze egymással.Az ingatlan a modern irodák követelményeinek maximálisan megfelel: SAJÁT ÉTTEREM többféle napi menüvel, ZUHANYZÁSRA is ALKALMAS VIZESBLOKKOK, 24 ÓRÁS RECEPCIÓ SZOLGÁLAT, 4 CSÖVES FAN-COIL FŰTÉS-HŰTÉS RENDSZER, KLÍMA, 3 db LIFT (teremgarázstól a legfelső emeletig), VIDEOKAMERÁS RENDSZER, TŰZ és BIZTONSÁGI RIASZTÓRENDSZER, vezetékes telefon és internetkapcsolat az irodákban, SZERVER SZOBA. Az épületen belül, az ÖSSZES FAL KÖNNYEN BONTHATÓ VÁLASZFAL, ennek mentén a LEENDŐ BÉRLŐ könnyedén a SAJÁT ELVÁRÁSAINAK MEGFELELŐEN ALAKÍTHATJA a TEREKET.A TEREMGARÁZSHELYEKEN KÍVŰL az épület udvarában FELSZÍNI AUTÓBEÁLLÓK is rendelkezésre állnak (55 Eur/db+áfa).Jelenleg az egész épület -a kínált 633 m2-en kívűl- bérbe van adva. Nyílászárók típusa: FÉM (dupla hőszigetelt), Belmagasság: 2,7 m. Közlekedés: ZUGLÓ VASÚTÁLLOMÁS, 1, 1A VILLAMOSOK és SZÁMOS BUSZ GYALOGOSAN 3 PERC ALATT ELÉRHETŐEK! Az alap bérleti díj 8,9 Eur/hó/m2+Áfa, az üzemeltetési előleg 2850 Huf/m2 amiben a közmű előleg is benne van a saját áramfogyasztás kivételével, ami 150 Huf/m2/hó+Áfa átalánydíjat jelent. Teremgarázs hely (+100 Eur+áfa/db), tároló (+9 Eur/m2+áfa), közös területi szorzó7%.TISZTELT ÉRDEKLŐDŐ!TÖBB MINT 20 ÉVE FOGLALKOZOM INGATLANOK ÉRTÉKESÍTÉSÉVEL MAGYARORSZÁG PIACVEZETŐ INGATLANKÖZVETÍTŐ HÁLÓZATÁNÁL, AZ OTTHON CENTRUMNÁL. AMENNYIBEN SZÁNDÉKÁBAN ÁLL INGATLANT ELADNI - A LEGRÖVIDEBB IDŐN BELÜL, GARANTÁLT JOGI, ÉS BANKI HÁTTÉRREL - KERESSEN BIZALOMMAL, HOGY EGY HELYSZÍNI FELMÉRÉST KÖVETŐ INGYENES ÉRTÉKMEGÁLLAPÍTÁS UTÁN, EGYÜTT TUDJUNK MŰKÖDNI AZ ÖN INGATLANÁNAK AZ ELADÁSÁBAN IS!
További adatok
Telekterület: -
Kert mérete: -
Erkély mérete: -
Felszereltség: -
Parkolás: -
Kilátás: -
Egyéb extrák:  
-
Hirdető adatai
Hirdető neve: Otthon Centrum
Kapcsolattartó: Csopaki Balázs
Hirdető telefonszáma: +36 70 716 8476
Honlap: -