Komárom-Esztergom megye, Tatabánya
 

Ingatlan adatai
Irányár: 69 900 000 Ft
Típus: lakás (tégla)
Kategória: eladó
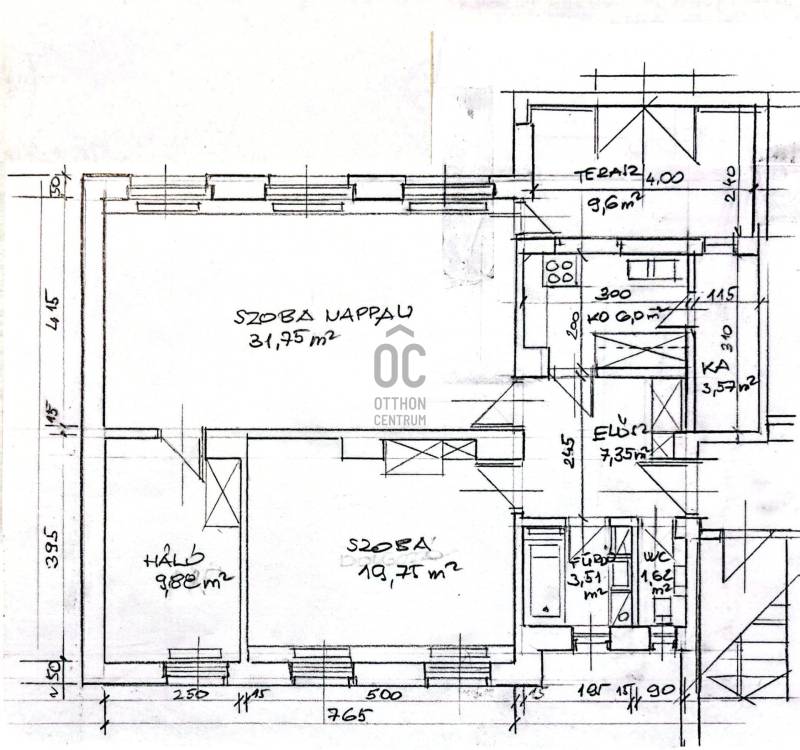
Alapterület: 86 m2
Fűtés: távfűtés
Állapota: -
Szobák száma: 3
Építés éve: 1965
Szintek száma: -
Részletes leírás
Természetközeli nyugalom, elegáns keretek közöttTatabánya Óvárosának csendes, zöldövezeti részén kínálunk egy közel 96 m²-es, kertkapcsolatos lakást – egy otthont, amely méreteiben és hangulatában inkább egy kisebb ház érzetét adja.A terek arányosak, átgondoltak, finoman őrzik egy igényes, kulturált múlt lenyomatát. A konyha és az üvegezett veranda közötti nagy tálalóablak különleges kapcsolatot teremt: a veranda egész évben használható, természetközeli étkezőként működik, közvetlen kertkapcsolattal.A jelenlegi nagy hálószoba korábban két helyiség volt, így igény szerint újra osztható.A fűtést kiváló állapotú öntöttvas radiátorok adják, és klíma is rendelkezésre áll. A nyílászárók használhatók, ugyanakkor a korszerűsítés lehetősége adott.Saját, közvetlenül a bejárat mellett nyíló tároló tartozik a lakáshoz.Ez az ingatlan nem csupán lakásként értelmezhető, de családosoknak egy élmény a hatalmas nappalijával.Terei és hangulata miatt kiváló lehet:– elegáns irodának, ahol a társsasházi környezet előnyt jelent– magánrendelőnek– vagy akár alkotótérnek egy művész számára, ahol a fény, a nyugalom és a tér inspiráló közeget ad-Az ingatlan reális áron kerül piacra. Festéssel azonnal költözhető, de a mai igényekhez igazítás teret ad az egyéni elképzeléseknek.A képek látványterveket is tartalmaznak, és az alaprajzok a pontos méreteket mutatják.
További adatok
Telekterület: -
Kert mérete: -
Erkély mérete: 10 m2
Felszereltség: -
Parkolás: -
Kilátás: utcai
Egyéb extrák:  
-
Hirdető adatai
Hirdető neve: Otthon Centrum
Kapcsolattartó: Török Ildikó
Hirdető telefonszáma: +36 70 412 3611
Honlap: -