Szabolcs-Szatmár-Bereg megye, Nyíregyháza
 

Ingatlan adatai
Irányár: 51 000 000 Ft
Típus: lakás (tégla)
Kategória: eladó
Alapterület: 46 m2
Fűtés: -
Állapota: -
Szobák száma: 2
Építés éve: 2022
Szintek száma: -
Részletes leírás
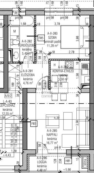
Eladó lakás Nyíregyháza egyik legkeresettebb részén!Nyíregyháza központi részén, a kórházzal szemben, kiváló elhelyezkedéssel eladó egy 44 m²-es, 1 szoba + amerikai konyhás nappalis társasházi lakás, 4 m²-es erkéllyel.Elosztás:előszoba • amerikai konyhás nappali • külön szoba • fürdőszoba • erkélyAmi igazán értékessé teszi:✅ klímával felszerelt✅ modern kondenzációs kazános fűtés✅ saját udvari parkolóhely, ami a vételár része – a környéken szinte lehetetlen parkolni✅ 4 m²-es erkélyLokáció, ami mindent visz:- kórház – 1 perc- pláza – 1 perc- belváros, Spar, Obi – kb. 5 perc sétaBefektetésnek is kiváló, a lakás jelenleg is bérbe van adva, így akár azonnali bevételt termelhet az új tulajdonosnak.Tökéletes választás saját otthonnak vagy biztos befektetésnek Nyíregyháza egyik legjobb lokációjában.További információért és megtekintéssel kapcsolatban keressen bizalommalAz alaprajz tájékoztató jellegű.A hirdetésben szereplő információk a megbízótól kapott adatok alapján készültek, pontosságukért felelősséget nem vállalunk!Amennyiben vásárláshoz hitelre is szüksége van, független hitel tanácsadónk ingyenesen tud Önnek segítséget nyújtani a legjobb konstrukciók kiválasztásában és a folyamat lebonyolításában. Irodánk kereső ügyfeleinknek teljes körű szolgáltatást nyújt, szakszerű tanácsadással, energetikai tanúsítvány elkészítésével, hitelügyintézéssel és profi ügyvédi segítséggel. Abban az esetben ha az ingatlan felkeltette érdeklődését keressen bizalommal!
További adatok
Telekterület: -
Kert mérete: -
Erkély mérete: 4 m2
Felszereltség: -
Parkolás: -
Kilátás: utcai
Egyéb extrák:  
-
Hirdető adatai
Hirdető neve: Otthon Centrum
Kapcsolattartó: Kosztyu -Tóbiás Nikolett
Hirdető telefonszáma: +36 70 469 3361
Honlap: -