Pest megye, Pécel
 

Ingatlan adatai
Irányár: 172 900 000 Ft
Típus: ház
Kategória: eladó
Alapterület: 175 m2
Fűtés: gáz (cirko)
Állapota: -
Szobák száma: 7
Építés éve: 1980
Szintek száma: -
Részletes leírás
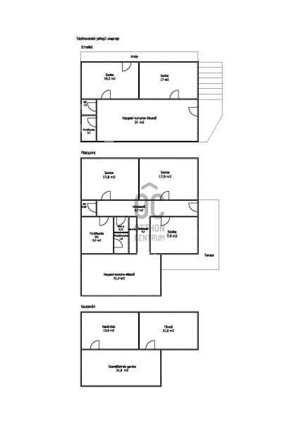
Panorámás kétgenerációs ház – örökpanorámás otthon Pécelen, az összetartozás és a nyugalom szigeteKépzeld el, hogy minden reggel a táj látványára ébredsz. A nappaliból és a teraszról is eléd táruló örökpanoráma nem csupán kilátás – hanem életérzés. Egy csésze kávé a felkelő nap fényében, este pedig a naplemente aranyló színei kísérik a családi beszélgetéseket. Itt a horizont a mindennapok része.Ez a 175 m²-es ikerház + 55 m² szuterén Pécel csendes, barátságos részén található, ahol a madárcsicsergés és a nyugalom valódi érték. A 450 m²-es telek intim, elszeparált kertrészt kínál halastóval – egy saját, privát oázist, ahol a gyerekek biztonságban játszhatnak, a nagyszülők pihenhetnek, a család pedig együtt élvezheti a természet közelségét.Az intim kert valódi menedékNincsenek kíváncsi tekintetek, csak a zöld, a víz csobogása és a meghitt családi pillanatok. Itt a hétvégi ebédek, kerti sütögetések és nyári esték valóban különleges hangulatban telnek.Kétgenerációs, duplakomfortos kialakítás – külön almérőkkelTökéletes választás összeköltöző családok számára, akik együtt, mégis külön szeretnének élni. A közelség biztonságot ad, a szeparált életterek pedig megőrzik az önállóságot és a privát szférát.**Emelet (74,5 m²):**– 2 különnyíló szoba– amerikai konyhás nappali– fürdőszoba**Földszint (100,3 m²):**– amerikai konyhás nappali– 3 különnyíló szoba– fürdőszoba– mosókonyha– 2 db WC- kamra**Szuterén (55 m²):**– szerelőaknás garázs– kazánház– tárolóA szuterén lehetőséget biztosít +1 külön lakrész kialakítására is. A tágas nappali a ház szíve – az a tér, ahol generációk találkoznak, ahol a közös vacsorák, ünnepek és hétköznapi beszélgetések emlékké válnak. A panorámára nyíló terasz pedig minden évszakban hozzátesz ehhez az élményhez.Műszaki tartalom és komfort:– 2022-ben teljes körű felújítás– műanyag nyílászárók redőnnyel és szúnyoghálóval– gáz cirkó fűtés– klíma– jó állapot, azonnal költözhető- az ingatlanban folyamatos esztétikai felújítás van: szagelszívó beépítése, konyha csempézése, szegőlécek, küszöbök felhelyezése, a korlátok cseréje.A kertben térkövezés, kerítés befejezése is a vételár részét képezi. Kiváló infrastruktúraBuszmegálló néhány perc sétára, a környéken iskola, óvoda, üzletek – minden adott a kényelmes, biztonságos családi élethez.Ez az ingatlan több mint egy ház. Ez egy olyan otthon, ahol a panoráma a mindennapok része, a kert a családi élet színtere, és ahol az összeköltözés nem kompromisszum, hanem lehetőség egy még szorosabb, még harmonikusabb életre.Az ilyen adottságú, örökpanorámás, intim kerttel rendelkező kétgenerációs otthon ritka kincs a piacon.Ha szeretnéd személyesen is átélni ezt az életérzést, keress bizalommal privát megtekintés egyeztetéséhez.Ez az ingatlan a \"Felező csomag\" megbízási portfólióhoz tartozik. Részletek az Otthon Centrum weboldalán.
További adatok
Telekterület: 450 m2
Kert mérete: 450 m2
Erkély mérete: 20 m2
Felszereltség: -
Parkolás: -
Kilátás: -
Egyéb extrák:  
-
Hirdető adatai
Hirdető neve: Otthon Centrum
Kapcsolattartó: Gallai Adrienn
Hirdető telefonszáma: +36 70 388 5686
Honlap: -