Pest megye, Dömsöd
 

Ingatlan adatai
Irányár: 61 900 000 Ft
Típus: ház
Kategória: eladó
Alapterület: 77 m2
Fűtés: -
Állapota: új
Szobák száma: 4
Építés éve: 2026
Szintek száma: -
Részletes leírás
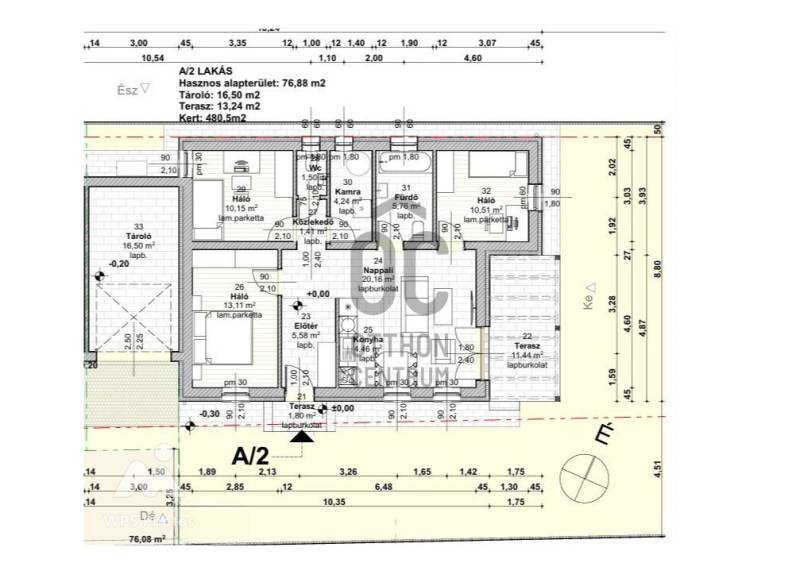
Dömsödön eladó• újépítésű• ikerház hátsó fele• nettó 76,88m2, bruttó 93,38 m2• amerikai konyhás nappali + 3 hálószoba• fűtés: hőszivattyú + padlófűtés• 15 cm grafitos szigetelés• telek: 480,5 m2• terasz: 13,24 m2
További adatok
Telekterület: 481 m2
Kert mérete: 481 m2
Erkély mérete: 11 m2
Felszereltség: -
Parkolás: -
Kilátás: -
Egyéb extrák:  
-
Hirdető adatai
Hirdető neve: Otthon Centrum
Kapcsolattartó: Joó Krisztina
Hirdető telefonszáma: +36 70 469 3111
Honlap: -