Pest megye, Csévharaszt
 

Ingatlan adatai
Irányár: 84 990 000 Ft
Típus: ház
Kategória: eladó
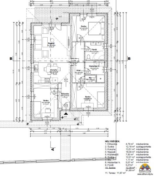
Alapterület: 92 m2
Fűtés: -
Állapota: új
Szobák száma: 4
Építés éve: 2026
Szintek száma: -
Részletes leírás
ÚJ ÉPÍTÉSŰ, ÖNÁLLÓ, PRÉMIUM MINŐSÉGŰ, ENERGIATAKARÉKOS CSALÁDI HÁZAK ELADÓK – CSÉVHARASZTON!OTTHONSTART HITELRE ALKALMAS – DÍJMENTES HITELÜGYINTÉZÉSSELKöltözzön modern, hosszú távon is értékálló álomotthonába, Budapesttől könnyen és gyorsan elérhető, nyugodt környezetben.ELHELYEZKEDÉS, KÖZLEKEDÉSÚj parcellázású, rendezett, családi házas övezetNyugodt, jól lakott település, kiépült infrastruktúrávalBuszmegálló 3 perc sétáraVasúti csomópont (Monorierdő) kb. 16 perc, ahonnan Budapest ~20 percIdeális választás gyermekes családoknak, de kiváló elosztásának köszönhetően 2 generáció összeköltözésére egyaránt!TELEK ÉS ELOSZTÁSTelek mérete: 768 m² – kiváló kertnek, parkolásnak, pihenésnek vagy későbbi bővítésnekHasznos elrendezés:tágas nappali–amerikai konyha3 különálló hálószoba (egy közvetlen teraszkapcsolattal)2 fürdőszobateraszkapcsolatos élettérSZERKEZETI ÉS MŰSZAKI TARTALOM – PRÉMIUM KATEGÓRIATartószerkezetFőfalak: 30 cm Porotherm téglaVálaszfalak: 10 cm Porotherm vagy YtongFödém: fa szerkezet, tanúsított gomba- és rovarvédelemmelLátszó szarufa, barna osztrák lambéria – természetes, meleg belső hangulatSzigetelésAljzat: 12 cm EPSHomlokzat: 10 cm grafitos hőszigetelés (dryvit)Födém: purhabos technológia, 30 cm kőzetgyapot értéknek megfelelőLábazat: 6 cm lépésálló szigetelésNYÍLÁSZÁRÓK, BURKOLATOK3 rétegű, 6 légkamrás Salamander nyílászárókAlumínium redőnyök, fehér színbenHideg–meleg burkolatok 5.000 Ft/m²-ig választhatókKültéri burkolatok: csúszásmentes, fagyállóBeltéri ajtók kilinccsel, festett falak, gipszes glettelésGÉPÉSZET ÉS KOMFORTMonoblokkos hőszivattyú + padlófűtés minden helyiségbenInverteres hűtő-fűtő klíma a nappaliban100 literes Ariston „okos” bojlerTeljes vízszűrő rendszerAlacsony rezsi, korszerű energetikai besorolásFÜRDŐSZOBÁK2 db fürdőszobaFalba épített Geberit WC tartályok170×75 cm kád automata leeresztővelÉpített zuhany folyókával2 db mosdó csapteleppelKÜLSŐ KIALAKÍTÁSUtcafronti kerítés festett fa deszkázattalGyalogos kapu + széles gépkocsi beálló40 cm széles beton járda a ház körül (esővíz-elvezetéssel)Tágas, rendezett kert kialakításának lehetőségeMIÉRT KIVÁLÓ VÁLASZTÁS?Új építés, prémium műszaki tartalomEnergiatakarékos megoldások → alacsony fenntartási költségRugalmas belső kialakítás, vevői igények szerintNagyméretű telek, értékálló befektetésGyors budapesti elérhetőség, nyugodt lakókörnyezetÁTADÁS ÉS FINANSZÍROZÁSÁtadás: Kulcsrakészen 2026. 07.használatbavételi engedéllyel 2026. 09.-10.Hitelre és támogatásra alkalmasDíjmentes hitelügyintézés – összes bank ajánlata egy helyenNem adta még el ingatlanát?Ne adja el piaci ár alatt!Hívjon egy díjmentes felmérésre.További információért, és megtekintésért várom megkeresését, akár hétvégén is!
További adatok
Telekterület: 769 m2
Kert mérete: 769 m2
Erkély mérete: 15 m2
Felszereltség: -
Parkolás: -
Kilátás: -
Egyéb extrák:  
-
Hirdető adatai
Hirdető neve: Otthon & City ingatlan iroda
Kapcsolattartó: Kaufmann Norbert
Hirdető telefonszáma: +36708507198
Honlap: -