Pest megye, Dánszentmiklós
 

Ingatlan adatai
Irányár: 58 500 000 Ft
Típus: ház
Kategória: eladó
Alapterület: 79 m2
Fűtés: egyéb
Állapota: új
Szobák száma: 4
Építés éve: 2026
Szintek száma: -
Részletes leírás
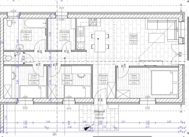
OTTHON START 3%-os hitelre alkalmasan.Hőszivattyú padlófűtéssel.Az építkezés március közepén indul , 10%önerővel leköthetőek.Referencia házak megtekinthetők..A közös falrészen vizesblokkhelységek lettek tervezve.  Átadás: 2026. DecemberNe szalaszd el , kíválló minőségben és oda figyelésben épülő ház.Pest megye déli részén, a Ceglédi járásban, a Duna-Tisza közi homokhátságon található a több mint 3000 lakosúDánszentmiklós.A község határos Pusztavacs, Újlengyel, Nyáregyháza, Mikebuda községekkel, Pilisnagyközséggel és Albertirsa városával, egyaránt 60 km-es távolságban fekszik a fővárostól, Szolnoktól ésKecskeméttől.A település jellemzően lankás, sík felszínét az északnyugat-délkeleti irányú homokhát határozzameg. Megjelenése alapvetően falusias, helyenként kertvárosias arculatú, mezőgazdasági jellegű település képétmutatja.Dánszentmiklós csendes nyugodt részén.ELADÓ ÚJ ÉPÍTÉSŰ 79 m2-es 3 szoba + nappali kialakítású ikerház fél.Az építkezés március közepén indul , 10%önerővel leköthetőek.Telek mérete: 584 m2Budapest távolsága 40 perc.405 út és az M5 autópálya 10 percen belül elérhető..Kialakítása: 3 szoba, nappali, konyha+étkező, fürdő+wc, külön wc, előtér, közlekedő, háztartási helyiség, kamra, nyitott terasz 20 m2Átadás: 2026. DecemberMűszaki tartalom: beton alapon, cserép fedésű tetővel, tégla falazatú (viablokk 30 és 10-es) 10cm eps szigetelés körben.Fűtést hőszivattyú adja, padlófűtés mindenhol, 1db 2,5 kw-os klíma az árban.Szürke színű lábazat, szürke tetőcserép, fehér homlokzat, kerítés az árban.Választhatók:hideg burkolat: 8000 Ft/ m2meleg burkolat: 6000 Ft / m2beltéri ajtók: 100.000 Ft /dbszaniterek: 450.000 Ft-igKiváló minőségben épülő 2 ikerház fél kerül kialakításra, kiváló utcában.Közelben gyalogosan: Abc, Orvosi rendelő, buszmegálló. Iskola és Óvoda pár pernyire.Albertira távolsága autóval 5 perc.Az ingatlan rugalmasan megtekinthető.Akár hétvégén is.JÖJJÖN el, NÉZZE meg, SZERESSEN bele, TEGYEN ajánlatot!Amennyiben felkeltettem érdeklődését jöjjön el, s nézzük meg az ingatlant.. Irodánk ügyfelei részére ingyenes hitel ügyintézéssel áll rendelkezésükre, továbbá segítséget nyújtunk adásvételi szerződéshez ügyvédi háttér biztosításához ,és energetikai tanúsítvány elkészítésében is.Amennyiben felkeltettem érdeklődését, kérem hívjon bizalommal, és találjuk meg álmai otthonát. Vevőinknek szolgáltatásaink ingyenesek ! Bankfüggetlen, díjmentes hiteltanácsadás, energetikai tanúsítvány készítése egy nap alatt, értékesítés gyorsan és profin... Mert mi itthon vagyunk! Ha felkeltettem az érdeklődését, kérem keressen .
További adatok
Telekterület: 584 m2
Kert mérete: 584 m2
Erkély mérete: -
Felszereltség: -
Parkolás: -
Kilátás: -
Egyéb extrák:  
-
Hirdető adatai
Hirdető neve: Dabas Régió
Kapcsolattartó: Pilis Anna
Hirdető telefonszáma: 06204004025
Honlap: -