Budapest, XIV.kerület
 

Ingatlan adatai
Irányár: 129 000 000 Ft
Típus: lakás (tégla)
Kategória: eladó
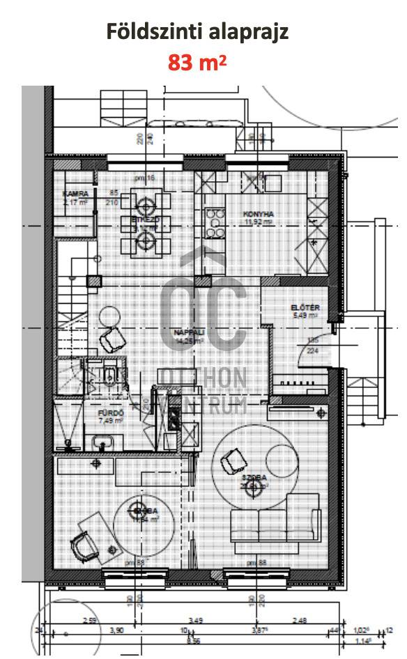
Alapterület: 83 m2
Fűtés: -
Állapota: -
Szobák száma: 4
Építés éve: 2025
Szintek száma: -
Részletes leírás
Budapest XIV. kerületének egyik legkedveltebb, kertvárosi részén, a Zugló szívében, a Rákospatak vonzáskörzetében, egy forgalomtól mentes kis utcában kínálunk megvételre ezt a különleges ingatlant.A fiatal építész-tervező csapat egy igazán egyedi koncepciót álmodott meg: a klasszikus, eredeti homlokzati karakter harmonikusan ötvöződik a modern, letisztult és funkcionális formavilággal. A belsőépítész a családias, bensőséges hangulat megteremtésére helyezte a hangsúlyt, így az otthonok egyszerre sugároznak eleganciát és melegséget.A kialakításAz ingatlanban két különálló lakás kerül kialakításra.Földszinti lakás:- 83 m² alapterület- 33 m² teljes értékű szuterén- Fürdőszoba kialakítható- Akár külön lakrészként, dolgozószobaként vagy vendégapartmanként is használható- 40 nm saját kert - autóbeállóMűszaki tartalom:- Korszerű, energiatakarékos hőszivattyús hűtés–fűtés rendszer- Igényes, modern műszaki megoldások- Átgondolt térszervezésAz ingatlan jelenlegi készültségi szintjén még lehetőség van:- Burkolatok kiválasztására- Belső elrendezés igény szerinti alakításáraÍgy az új tulajdonos valóban saját igényeire szabhatja leendő otthonát.Rendelkezésre álló dokumentáció:Az építkezés teljes körű, rendezett műszaki háttérrel rendelkezik:- Egyszerű bejelentési dokumentáció lakóépület bővítésére (Zuglói főépítész által elfogadva, 2022. február)- Méretezett alaprajzok (pince, földszint, emelet)- Metszetrajzok, rétegrendek, anyaghasználati tervek- Épületgépészeti és épületvillamossági rendszerleírások- Teljes műszaki tervdokumentáció- Tartószerkezeti és tetőszerkezeti tervek- Vasalási tervek (alapozás, pincefödém, földszint feletti födém, tetőszerkezet)- Vasmennyiségi kimutatások- Anyagok- A pince- és földszinti födémhez a teljes betonvas mennyiség rendelkezésre állTervezett átadás 4-6 hónapon belül.A kivitelező számos referenciával rendelkezik.Ez az ingatlan ideális választás lehet:- többgenerációs családoknak,- befektetőknek (külön hasznosítható lakrészek),- vagy azoknak, akik modern, mégis otthonos környezetben szeretnének élni Zugló egyik legnyugodtabb utcájában.Ha egy különleges karakterű, személyre szabható otthont keres kertvárosi környezetben, ez az ingatlan kivételes lehetőség.
További adatok
Telekterület: -
Kert mérete: -
Erkély mérete: -
Felszereltség: -
Parkolás: -
Kilátás: kertre néző
Egyéb extrák:  
-
Hirdető adatai
Hirdető neve: Otthon Centrum
Kapcsolattartó: Radnai Orsolya
Hirdető telefonszáma: +36 70 388 5711
Honlap: -