Budapest, V.kerület
 

Ingatlan adatai
Irányár: 115 000 000 Ft
Típus: lakás (tégla)
Kategória: eladó
Alapterület: 71 m2
Fűtés: gáz (cirko)
Állapota: -
Szobák száma: 3
Építés éve: -
Szintek száma: -
Részletes leírás
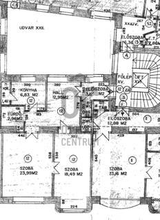
Budapest V. kerületének egyik legjobb részén, a Veres Pálné utca és az Irányi utca sarkán kínálok megvételre egy 71 nm-es, jó állapotú, kiváló elrendezésű lakást.A lakás elosztása rendkívül praktikus:• 3 külön nyíló szoba• tágas konyha/étkező• kamra (spájz/tároló)• fürdőszoba WC-vel• külön WCAz alaprajz miatt tökéletes választás befektetésnek, kiadásra egyetemistáknak vagy fiatal bérlőknek, de akár nappali + 2 hálós lakássá is könnyen alakítható.A lakás jó állapotú, a felújítás kb. 15 éve történt, a nyílászárók azonban nemrég cserélve lettek.Az ingatlan hivatalosan félemeleti, de a valóságban inkább első emeleti magasságban van, az alatta lévő üzletek nagy belmagassága miatt. Az ablakok az Irányi utcára néznek.Elhelyezkedése kiemelkedő– több egyetem gyorsan elérhető– M3 metró 2 perc sétára– számos buszjárat a közelbenBelvárosi környezet, kiváló közlekedés, jól hasznosítható terek – saját otthonnak és befektetésnek is remek választás.Egyedi igényekre szabott lakáshitelekkel állunk rendelkezésére.Bankfüggetlen Hitelcentrumunk az országban elérhető összes bank és hitelintézet ajánlatát versenyezteti az Ön számára díjmentesen.Munkatársaink nagy szakmai tapasztalattal, teljes körű CSOK PLUSZ és OTTHON START PROGRAM ügyintézéssel várják Önt előre egyeztetett időpontban akár a normál munkaidő után is.
További adatok
Telekterület: -
Kert mérete: -
Erkély mérete: -
Felszereltség: -
Parkolás: -
Kilátás: utcai
Egyéb extrák:  
-
Hirdető adatai
Hirdető neve: Otthon Centrum
Kapcsolattartó: Salánki Teodóra
Hirdető telefonszáma: +36 70 716 9101
Honlap: -