Baranya megye, Birján
 

Ingatlan adatai
Irányár: 295 000 000 Ft
Típus: ház
Kategória: eladó
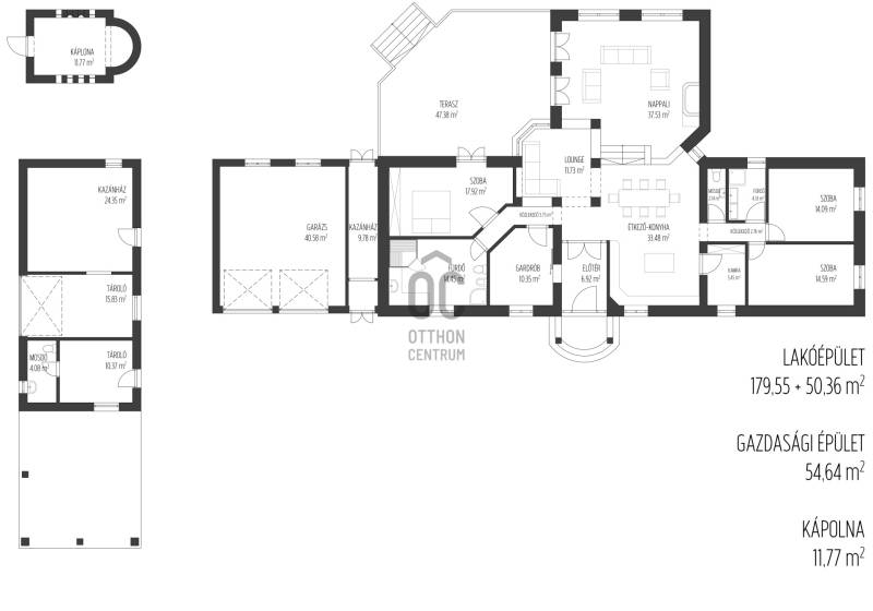
Alapterület: 180 m2
Fűtés: -
Állapota: -
Szobák száma: 4
Építés éve: 1995
Szintek száma: -
Részletes leírás
Az ingatlan 2 generáció össze költözésére, vagy akár egy nagyobb család lakhatására is alkalmas.A ház rendkívül csendes nyugodt helyen a falu végén található.A nappaliból szép tiszta időben a Villányi hegység látható.Az épületet 1992-94 között építették az akkori kor legkorszerűbb építés technikai és gépészeti elvárásai mellett.A közel másfél hektáros terület az elmúlt 30 év alatt gyönyörű arborétummá alakult. Különleges díszfák, erdei fák, gyümölcsfák, dísz bokrok, (közel 500 db fa található a birtokon).Az arborétum sajátossága hogy a növények abszolút vegyszermentesek, soha semmilyen vegyszert nem használtak.Óriási Madrid sereg van a telek körül és a telken belül is. Évek óta egy mókus család is beköltözött a fákra.Az ingatlan rendelkezik egy 50 köbméteres eső víztárolóval ahol az épületről összegyűjtött esővizet tárolják.A kertben egy 40 m mély fúrt kút is található, amiben 20-25 m a víz oszlop.Az ingatlan rezsiköltsége minimális, a villanyszámla a napelemek miatt, a fűtés az egyedi tervezésű kazánnal, és ha szükséges gáz rá segítéssel működik. A nappaliban cserépkályha ill klíma is van.Bírján Pécstől 17 km-de található.Az energetikai tanúsítvány készítése folyamatban van, amint rendelkezésre áll, úgy azzal a hirdetés frissítésre kerül.
További adatok
Telekterület: 11 486 m2
Kert mérete: 11 486 m2
Erkély mérete: 47 m2
Felszereltség: -
Parkolás: -
Kilátás: -
Egyéb extrák:  
-
Hirdető adatai
Hirdető neve: Otthon Centrum
Kapcsolattartó: Czigler László
Hirdető telefonszáma: +36 70 388 5676
Honlap: -