Bács-Kiskun megye, Kecskemét
 

Ingatlan adatai
Irányár: 53 500 000 Ft
Típus: lakás (tégla)
Kategória: eladó
Alapterület: 57 m2
Fűtés: gáz (konvektor)
Állapota: -
Szobák száma: 2
Építés éve: 1970
Szintek száma: -
Részletes leírás
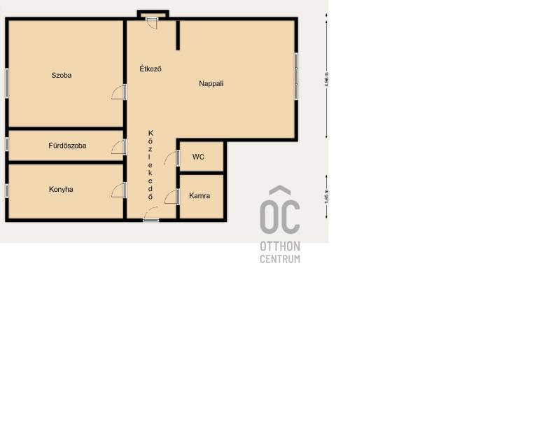
Eladásra kínálok Kecskemét Máriavárosban egy 57 m²-es, világos és igényesen felújított lakást, amely kényelmes elrendezésével ideális választás lehet fiataloknak, pároknak vagy akár befektetésnek is.A lakás nappali + 1 szobás kialakítású, tágas nappalival és franciaerkéllyel, amely még világosabbá és kellemesebbé teszi a lakóteret.Az ingatlan 2024-ben felújításon esett át, melynek során megújultak a víz- és vezeték hálózatok,belső és külső nyílászárók, a hidegburkolatok és a vinyl padló, valamint friss festést kapott a lakás. A küszöbmentes kialakítás praktikus és modern megjelenést biztosít.Főbb jellemzők:57 m² lakótérnappali + 1 szobaklímaműanyag nyílászárókfranciaerkélybeépített szekrény2024-ben teljesen felújítottkonvektoros fűtés, kiegészítésként elektromos fűtési lehetőségközös tárolóJó elhelyezkedés, minden fontos szolgáltatás a közelben.Ha szeretnéd megnézni, keress bátran!
További adatok
Telekterület: -
Kert mérete: -
Erkély mérete: -
Felszereltség: -
Parkolás: -
Kilátás: utcai
Egyéb extrák:  
-
Hirdető adatai
Hirdető neve: Otthon Centrum
Kapcsolattartó: Dunai-Koncz Adrienn
Hirdető telefonszáma: +36 70 716 9061
Honlap: -