Csongrád megye, Makó
 

Ingatlan adatai
Irányár: 22 900 000 Ft
Típus: lakás (tégla)
Kategória: eladó
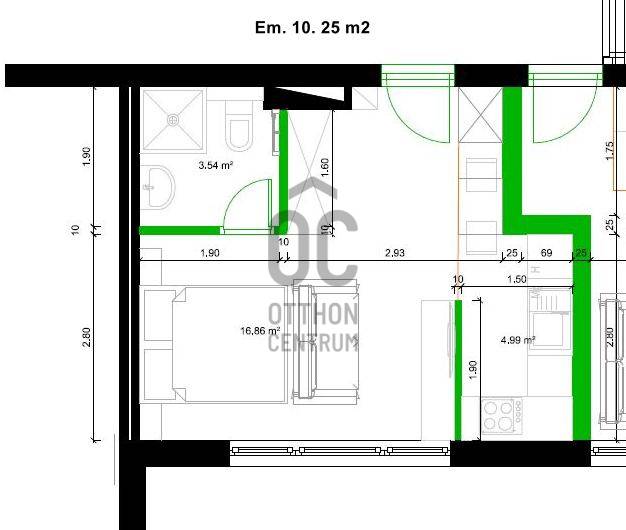
Alapterület: 25 m2
Fűtés: házközponti egyedi méréssel
Állapota: -
Szobák száma: 1
Építés éve: 1980
Szintek száma: -
Részletes leírás
Tisztelt Érdeklődő!Makón, a Liget Lakóparkban jelenleg is zajlanak azok az átalakítási és felújítási munkálatok, amelyek egy teljesen megújult, modern emeleti lakást fognak eredményezni! Ez azt jelenti, hogy Ön lesz az elsők között, aki birtokba veheti ezt a világos, jól kialakított elrendezésű otthont – vadonatúj állapotban.Az ingatlan a Liget utcában, egy zárt lépcsőházas, 16 lakásos társasházban található. A belváros autóval mindössze 3 perc, kerékpárral 5 perc, gyalog körülbelül 17 perc alatt érhető el, így minden fontos intézmény és szolgáltatás gyorsan megközelíthető. Bevásárlási lehetőségek, óvoda, iskola és buszmegálló néhány száz méterre található, ami a mindennapokat igazán kényelmessé teszi.A társasház emeletén eladó egy 25 m²-es, téglaépítésű lakás, amely teljeskörű felújításon megy keresztül. Az ingatlanban a teljes áram-, víz- és csatornahálózat új, a gáz a lakásba nincs bekötve. A fűtés házközponti, hőfokszabályzós radiátorokkal, egyedi fogyasztásméréssel működik, így minden lakó csak a saját fogyasztása után fizet. A melegvíz-ellátást korszerű okosbojler biztosítja, a lakásban 1 db klíma került kiépítésre.A lakás bútorozatlan, beépített gépek nélkül kerül átadásra, azonban a szükséges csatlakozások és kiállások már kiépítésre kerültek, így az új tulajdonos saját ízlése szerint alakíthatja ki otthonát. A lakótér szoba-nappali-konyha-étkező formájában egybenyitott, így a kompakt alapterület ellenére tágas és levegős érzést nyújt. A fürdőszoba mosdóval, WC-vel és zuhanyzóval felszerelt, minden praktikus igényt kielégít. A burkolatok mintái megtekinthetők az irodában.A parkolás az utcán díjmentesen megoldható, de a lakáshoz a telekhatáron belül saját parkoló is vásárolható 1 millió forintért. Közös tároló nincs, de az udvarban kerékpártároló biztosított.A lakópark legkésőbb 2026.05.31-én kerül átadásra, utána a lakás akár azonnal költözhető. A részletes műszaki paraméterekről és a fizetési ütemezésről érdeklődjön személyesen az irodánkban.Kíváncsi? Jöjjön el irodánkba, és tegyük kézzelfoghatóvá a terveit!Makóról bővebben itt: http://mako.hu/makoi-seta/Legyen tisztában pénzügyeivel, mielőtt elkötelezi magát! Ebben díjmentesen az Ön rendelkezésére áll bankfüggetlen hitelközvetítőnk.Vevőinket profi és kedvező díjazású ügyvédi háttérrel is segítjük a szerződéskötés során.#otthoncentrummako #makoiingatlan #eladolakas #makoeladolakas #ingatlan #otthoncentrum #ingatlanpiac #otthon #hagymatikum #forsale #oc #hitel #ocmako #biztositas #realestate #veledmindenlepesnel #homesweethome #ingatlankozvetites #almokatepitunk #koltozes #felujitottlakas
További adatok
Telekterület: -
Kert mérete: -
Erkély mérete: -
Felszereltség: -
Parkolás: -
Kilátás: utcai
Egyéb extrák:  
-
Hirdető adatai
Hirdető neve: Otthon Centrum
Kapcsolattartó: Lipták Tibor István
Hirdető telefonszáma: +36 70 388 6236
Honlap: -