Hajdú-Bihar megye, Ebes
 

Ingatlan adatai
Irányár: 89 900 000 Ft
Típus: ház
Kategória: eladó
Alapterület: 75 m2
Fűtés: -
Állapota: -
Szobák száma: 3
Építés éve: 2025
Szintek száma: -
Részletes leírás
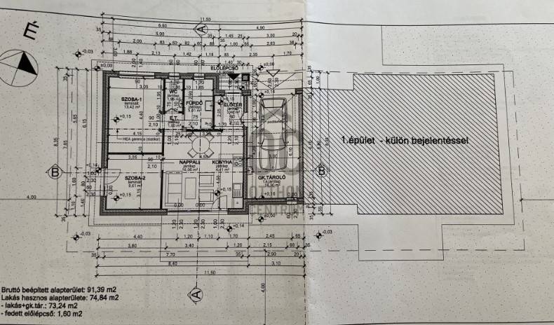
Ebesen kínálunk eladásra, igazán különleges,, magas műszaki tartalommal megépített új családi házat, amely ideális választás lehet családosok számára. Ez a modern, 74,84 nm hasznos alapterületű ingatlan, 2025-ben, THERMO-BLOCKK falazó elemekből épült 305 nm-es hozzá tartozó telken.Főbb jellemzők:- magas műszaki tartalom- amerikai konyhás nappali- konyha beépített bútorokkal gépekkel- kertkapcsolat- két külön nyíló szoba- elektromos redőnyök- kádas fürdőszoba- hőszivattyús padló fűtés- meleg víz elektromos vízmelegítővel/Ariston/- fürdőszoba és külön WC kézmosóval- garázsAmennyiben felkeltette érdeklődését ez a kellemes hangulatot árasztó, szép lakás keressen bizalommal és tekintse meg!Amennyiben vásárláshoz hitelre is szüksége van független hitel tanácsadónk ingyenesen tud Önnek segítséget nyújtani a legjobb konstrukciók kiválasztásában és a folyamat lebonyolításában.Irodánk kereső ügyfeleinknek teljes körű szolgáltatást nyújt, szakszerű tanácsadással, hitelügyintézéssel és profi ügyvédi segítséggel.Ebes, új építés, amerikai konyha+2 szoba, hőszivattyús fűtés
További adatok
Telekterület: 305 m2
Kert mérete: 305 m2
Erkély mérete: -
Felszereltség: -
Parkolás: -
Kilátás: -
Egyéb extrák:  
-
Hirdető adatai
Hirdető neve: Otthon Centrum
Kapcsolattartó: Erdődiné Szabó Edit
Hirdető telefonszáma: +36 70 469 3226
Honlap: -