Budapest, XII.kerület
 

Ingatlan adatai
Irányár: 119 000 000 Ft
Típus: lakás (tégla)
Kategória: eladó
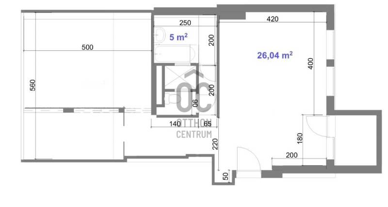
Alapterület: 60 m2
Fűtés: gáz (cirko)
Állapota: -
Szobák száma: 3
Építés éve: 1940
Szintek száma: -
Részletes leírás
Eladásra kínálok egy hangulatosan kialakított, tetőtéri lakást a Mom park szomszédságában, csodás panorámával. Az erkélyes ingatlan egyediségét és stílusát az eredeti, kezelt fa gerendák határozzák meg. -Teljes körűen felújított és átalakított lakás-Nappali+hálószoba+dolgozó/gyerekszoba elosztású- Fürdőszoba+wc külön, ablakos szellőztethető- Beépített, gépesített konyha-Világos, magas emeleti ( lift nincs)- Cirkó fűtés, műanyag ablakok, klíma- 4 nm-es, kiülésre alkalmas erkély- több bútor is az eladási ár részét képezi .Társasház:-Jó állapotú társasház- Pár éve felújított lépcsőház-Műanyag nyílászárók-Tiszta, rendezett terek-Közös költség: 22.000 + 5000 Ft felújítási alap/hóHitelszakértőnk segít! Hívjon még ma megtekintés miatt, ne maradjon le róla!
További adatok
Telekterület: -
Kert mérete: -
Erkély mérete: 4 m2
Felszereltség: -
Parkolás: -
Kilátás: utcai
Egyéb extrák:  
-
Hirdető adatai
Hirdető neve: Otthon Centrum
Kapcsolattartó: Dorkó Ivett
Hirdető telefonszáma: +36 70 716 9951
Honlap: -