Pest megye, Százhalombatta
 

Ingatlan adatai
Irányár: 89 900 000 Ft
Típus: ház
Kategória: eladó
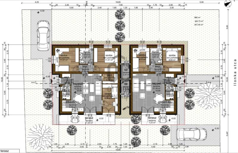
Alapterület: 57 m2
Fűtés: -
Állapota: új
Szobák száma: 3
Építés éve: 2026
Szintek száma: -
Részletes leírás
ÁLLAMI TÁMOGATÁS, (2,6 M Ft)ÁFA VISSZAIGÉNYLÉS (5%)ILLETÉKMENTESSÉG (4 %)BABAVÁRÓ ÉS TÁMOGATOTT CSOK HITEL.Eladó egy földszintes, nettó 57,19(bruttó 69) nm-es N + 3 szobás ikerház 1 számú lakása, 566 nm-es telken.A ház 30-as POROTHERM téglából épül, 15 cm-es DRYVIT szigeteléssel. A nyílászárók háromrétegű üvegezésűek.A fűtést hőszivattyú (6 KW) biztosítja, padlófűtés hőleadással.A ház kulcsrakész állapotban kerül átadásra. A burkolatokat, szanitereket, valamint a beltéri ajtókat az új tulajdonos választhatja ki. A parkolásra felszíni kocsibeálló áll rendelkezésre.Az infrastruktúrája jó, óvoda, iskola, bevásárlási lehetőség autóval pár perc alatt elérhető.Az Otthon Centrum irodáiban hitel tanácsadó segíti az igénylés teljes folyamatát, hitel felvétel esetén megkeresi az Önnek legmegfelelőbb ajánlatot a bankok kínálatából.Vegye igénybe ingyenes szolgáltatásainkat!
További adatok
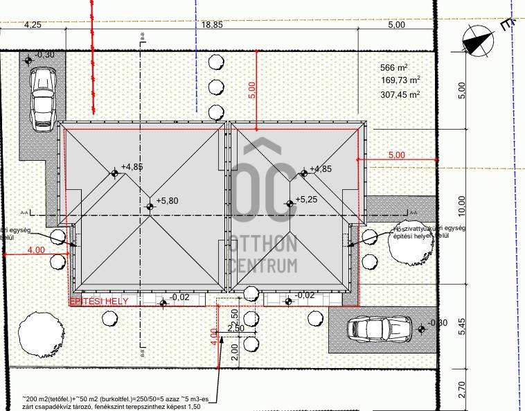
Telekterület: 566 m2
Kert mérete: 566 m2
Erkély mérete: 7 m2
Felszereltség: -
Parkolás: -
Kilátás: -
Egyéb extrák:  
-
Hirdető adatai
Hirdető neve: Otthon Centrum
Kapcsolattartó: Mészárosné Sőregi Mara
Hirdető telefonszáma: +36 70 461 9656
Honlap: -