Pest megye, Nyáregyháza
 

Ingatlan adatai
Irányár: 73 500 000 Ft
Típus: ház
Kategória: eladó
Alapterület: 80 m2
Fűtés: gáz (cirko)
Állapota: új
Szobák száma: 4
Építés éve: 2026
Szintek száma: -
Részletes leírás
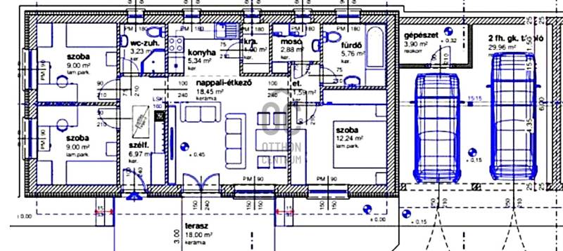
Nyáregyházán kínálom megvételre ezt a kivételes adottságú házat. A telken 2 db ingatlan épül melyek között 2-2 garázs kapott helyet. Az egyedi konyhabútorral felszerelt, házban 3 háló, 2 fürdő (zuhanyzós és sarokkádas ez utóbbiban bidé is beépítésre került), kamra, mosókonyha kapott helyet. Nappalijához 18 m2-es terasz kapcsolódik. A kétállásos garázs mellett található még egy 4 m2-es kazánház , ami ideális kerti szerszámok, tárolására is. Fűtése cirkó kazánnal, 2 db fűtésre optimalizált klímával megoldott. Meleg víz ellátása hőszivattyús bojlerrel történik így az alacsony energiafogyasztás és a meleg víz komfort is megvalósul. Az ingatlan teljes közművel, külön mérőórákkal és H tarifás mérővel rendelkezik, energetikai besorolás A+. Össz. alapterülete 110 m2. Szerkezete tégla, 15 cm szigeteléssel, alumínium bádogozással, beton cserepezéssel.Belső kialakítása igényes nappaliban rejtett hangulatvilágítás, igényes burkolatok, szaniterek, 3 rtg. nyílászárói redőnnyel, szúnyoghálóval védettek. Az épület minőségi kivitelezésű, építője számos referenciával rendelkezik. Bolt, központ, óvoda, iskola pár perc sétára található. A település kifejezetten hangulatos, élő közösséggel. Megközelíthetősége a 4.számú főútról és az M4-esről is egyszerű. Támogatott lakáshitel igénybe vehető, tehermentes, azonnal költözhető! Ide tényleg csak költözni kell!
További adatok
Telekterület: 360 m2
Kert mérete: 360 m2
Erkély mérete: 18 m2
Felszereltség: -
Parkolás: -
Kilátás: -
Egyéb extrák:  
-
Hirdető adatai
Hirdető neve: Otthon Centrum
Kapcsolattartó: Gál Krisztián
Hirdető telefonszáma: +36 70 469 3106
Honlap: -