Budapest, XV.kerület
 

Ingatlan adatai
Irányár: 66 000 000 Ft
Típus: lakás (tégla)
Kategória: eladó
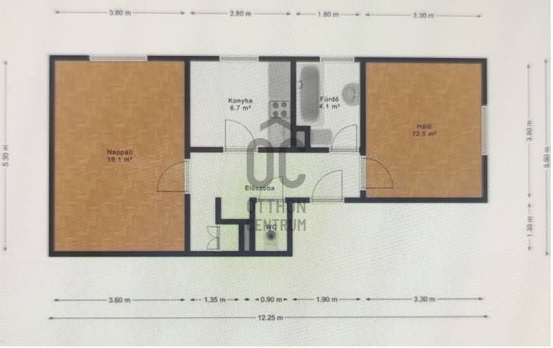
Alapterület: 52 m2
Fűtés: távfűtés
Állapota: -
Szobák száma: 2
Építés éve: 2000
Szintek száma: -
Részletes leírás
Fedezze fel új otthonát, egy roppant barátságos, napfényes, tágas lakást Rákospalotán! Ez a 52 négyzetméteres, két szobás lakás Rákospalota szívében helyezkedik el, és kiváló lehetőségeket kínál mind a kényelmes életvitelhez, mind a jövedelmező befektetéshez. Az ingatlan állapota jó, így azonnal költözhető, és a távfűtés egyedi mérésének köszönhetően a fűtési költségek is kedvezőek. A lakás világos, napfényes, tágas szobái ideális környezetet biztosítanak a mindennapi élethez. Különlegességea lakásnak, hogy a WC és gardrób kivételével minden helyisége ablakos, D-K-i tájolásának köszönhetően pedig ragyogó napfényes. A lakás minden szeglete praktikus és otthonos. A műanyag ablakokon redőny és szúnyogháló is van.A fűtést hőmennyiségmérős távhő biztosítja, a víz- és áramfogyasztás egyedi mérőórák alapján fizetendő.Havi átlagos rezsi-költség 20.000,-Ft, a közös költség 12.500,-Ft.Tartozik a lakáshoz a földszinten egy 2,5 nm-es száraz, ablakos tároló is, mely a vételár részét képezi.Parkolni a ház előtt ingyenesen lehet, és mindig van bőven hely. A Pólus Center közelsége miatt a környék ellátottsága kiváló, számos bolt, étterem és szolgáltatás található a közvetlen közelben, így a mindennapi szükségletek gyorsan és kényelmesen kielégíthetők. A közlekedési lehetőségek is rendkívül kedvezőek, hiszen a közelben található busz- és villamosmegállók révén Budapest belvárosa könnyen és gyorsan megközelíthető, így az ingatlan nemcsak lakóhelyként, hanem remek befektetési lehetőségként is megállja a helyét. A környék biztonságos, családbarát légkörrel rendelkezik, ami különösen vonzó lehet a fiatal felnőttek és családok számára. A közeli parkok és zöld területek lehetőséget adnak a szabadidő eltöltésére, sportolásra és a természet közelségének élvezetére. Amennyiben bármilyen kérdése van az ingatlannal vagy a környékkel kapcsolatban, bizalommal kereshet minket. Szívesen állunk rendelkezésére, hogy segítsünk Önnek megtalálni az ideális otthont vagy befektetési lehetőséget!
További adatok
Telekterület: -
Kert mérete: -
Erkély mérete: -
Felszereltség: -
Parkolás: -
Kilátás: kertre néző
Egyéb extrák:  
-
Hirdető adatai
Hirdető neve: Otthon Centrum
Kapcsolattartó: Ráduly Zsuzsanna
Hirdető telefonszáma: +36 70 461 9166
Honlap: -