Szabolcs-Szatmár-Bereg megye, Nyíregyháza
 

Ingatlan adatai
Irányár: 91 900 000 Ft
Típus: ház
Kategória: eladó
Alapterület: 116 m2
Fűtés: -
Állapota: új
Szobák száma: 4
Építés éve: 2026
Szintek száma: -
Részletes leírás
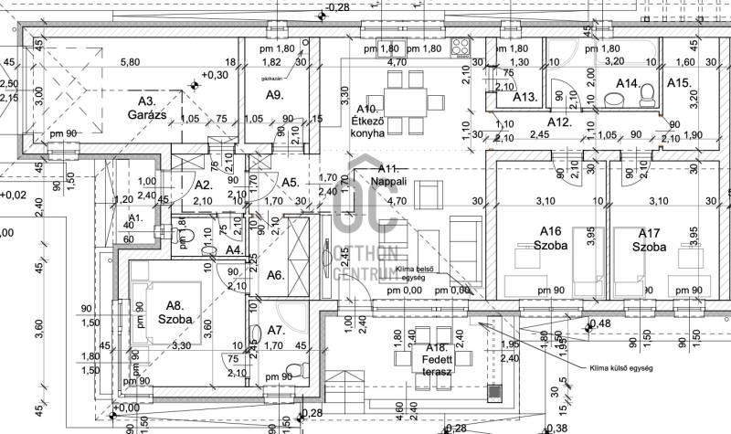
Eladó új építésű ikerházfél Nyíregyházán – külön elkerített udvarral! Eladásra kínálunk egy 144,24 m² alapterületű, modern kialakítású ikerház első felét, amely praktikus elrendezésével és tágas tereivel ideális választás családok számára.Az ingatlanban 3 külön nyíló szoba, valamint egy tágas, amerikai konyhás nappali került kialakításra, amely közvetlen kapcsolatban áll a terasszal és a kerttel. A világos nappali tökéletes helyszín a családi együttlétekhez és baráti összejövetelekhez.A lakásban 2 fürdőszoba található:•egy kádas fürdőszoba,•valamint egy zuhanyzós fürdőszoba, ami kényelmes megoldást nyújt a mindennapokban.Az ingatlanhoz külön elkerített udvarrész tartozik, amely biztosítja a nyugodt, privát környezetet.Műszaki jellemzők:•Porotherm 30 N+F teherhordó falazat•15 cm homlokzati hőszigetelés•Porotherm 30 N+F belső teherhordó falak•Porotherm 10 N+F válaszfalak•korszerű, energiatakarékos építési technológiaFőbb adatok:•Alapterület: 144,24 m²•3 szoba + amerikai konyhás nappali•2 fürdőszoba•teraszkapcsolatos nappali•külön elkerített udvar•családbarát elrendezésAz ingatlan ideális választás mindazok számára, akik modern, energiatakarékos otthont keresnek nyugodt környezetben.További információért és megtekintéssel kapcsolatban keressen bizalommalAz alaprajz tájékoztató jellegű.A hirdetésben szereplő információk a megbízótól kapott adatok alapján készültek, pontosságukért felelősséget nem vállalunk!Amennyiben vásárláshoz hitelre is szüksége van, független hitel tanácsadónk ingyenesen tud Önnek segítséget nyújtani a legjobb konstrukciók kiválasztásában és a folyamat lebonyolításában. Irodánk kereső ügyfeleinknek teljes körű szolgáltatást nyújt, szakszerű tanácsadással, energetikai tanúsítvány elkészítésével, hitelügyintézéssel és profi ügyvédi segítséggel. Abban az esetben ha az ingatlan felkeltette érdeklődését keressen bizalommal!
További adatok
Telekterület: 900 m2
Kert mérete: 900 m2
Erkély mérete: 11 m2
Felszereltség: -
Parkolás: -
Kilátás: -
Egyéb extrák:  
-
Hirdető adatai
Hirdető neve: Otthon Centrum
Kapcsolattartó: Kosztyu -Tóbiás Nikolett
Hirdető telefonszáma: +36 70 469 3361
Honlap: -