Pest megye, Pomáz
 

Ingatlan adatai
Irányár: 146 500 000 Ft
Típus: ház
Kategória: eladó
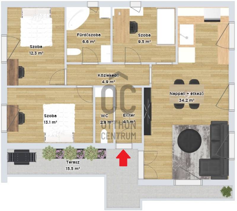
Alapterület: 99 m2
Fűtés: -
Állapota: -
Szobák száma: 4
Építés éve: 2025
Szintek száma: -
Részletes leírás
Pomázon kínálok megvételre egy SIP technológiával épített, könnyűszerkezetes házat.A könnyűszerkezetes szóhoz kapcsolódó negatív sztereotipia ne tévesszen meg senkit, a SIP egy szendwich paneles eljárás.A SIP panel, vagy más néven a SIP modul, két OSB lap közé egy speciális anyaggal beragasztott EPS, XPS, vagy PUR szigetelőlemez formaldehid-mentes, és környezetbarát kötőanyagaival nem károsítja az egészséget.Kiváló a hőszigetelő tulajdonsága, így egy 30 cm-es külső fallal már a passzívház határértékének megfelelő hőszigetelés érhető el, és a statikai tulajdonságai alapján nincs szükség külön tartószerkezetre (önhordó szerkezet).Az építész tervrajza alapján a paneleket az üzemben pontos méretre gyártják; a “vinkli, az derékszög, a függőleges, az nem hasas, a vízszintesek nem a végtelen előtt találkoznak, a belmagasság bármelyik ponton mérve, bármelyik helyiségben azonos.Nincs felesleges, leeső anyag, pontosan annyit szabnak ki, mint amennyire szükség van. Nem kell 2 teherautó sittet tárolni, kezelni, elszállíttatni az építkezés végén, mert alig van hulladék. A környezetet sem terheljük, és a kezelési, elszállítási költség is elmarad, és nem szegjük nyakunkat a féltéglák, megkötött cementbuckák halmai között.Helyszínen a pontosság miatt rendkívül gyors az összeszerelés; gyakorlatilag a semmiből 60-90 nap alatt kulcsrakész átadás történhet.Már saját magunk is tapasztalhattuk a tervezés fázisában: azonos energetikai besorolás mellett közel 10 %-kal nagyobb hasznos alapterületet kapunk egy téglaházhoz képest. Vékonyabb falazat használatával energiatakarékosabb épület építhető. (Már most teljesülnek a 2020-tól bevezetésre kerülő nagyon szigorú energetikai szabványok előírásai.)A nyílászárók műanyagok, három rétegű üveggel.Az udvarról és az eresz rendszerből egy talajba ásott 2 köbméteres szikkasztóba távozik a víz, így biztosítva, hogy ne képződjön sár az udvaron.A padlás szinten egy 20 m2-es rész biztosít extra pakolási lehetőséget.H tarifás elektromos hálózat áll rendelkezésre.A fűtés hőszivattyús, ezen kívül hűtő-fűtő klíma áll rendelkezésre.20 m2-ess terasz egészíti ki.A telken két ház van, osztatlan közös tulajdon, a teljes telek 940 m2, az ehhez a házhoz tartozó rész 375 m2.Ha felkeltette az érdeklődését hívjon bizalommal.
További adatok
Telekterület: 940 m2
Kert mérete: 940 m2
Erkély mérete: 20 m2
Felszereltség: -
Parkolás: -
Kilátás: -
Egyéb extrák:  
-
Hirdető adatai
Hirdető neve: Otthon Centrum
Kapcsolattartó: Kézér Ádám
Hirdető telefonszáma: +36 70 461 9611
Honlap: -