Pest megye, Majosháza
 

Ingatlan adatai
Irányár: 79 000 000 Ft
Típus: ház
Kategória: eladó
Alapterület: 73 m2
Fűtés: -
Állapota: új
Szobák száma: 2
Építés éve: -
Szintek száma: -
Részletes leírás
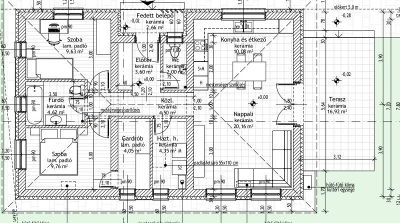
Majosházán önálló családi ház nagy telekkel eladóPest vármegyében, Majosházán eladó egy 73 m²-es önálló családi ház, 848 m²-es telken.Az ingatlan praktikus elrendezésű:2 szobaamerikai konyhás nappalifürdőszobaközlekedőterasz 17 m2A ház korszerű műszaki tartalommal rendelkezik:hőszivattyús padlófűtés12 cm homlokzati szigetelés35 cm födémszigetelés, amely hozzájárul az alacsony rezsiköltséghez.A 848 m²-es telek tágas, ideális kertészkedéshez, pihenéshez vagy akár további bővítési lehetőségekhez.Majosháza csendes, nyugodt település, a Ráckevei–Soroksári Duna-ág közelében, így a természet és a vízpart szerelmeseinek kiváló választás. A környék lehetőséget kínál horgászatra, kirándulásra és vízi sportokra.A közlekedés kedvező:Budapest autóval az 51-es főúton könnyen megközelíthető,a közelben Ráckevei HÉV és Volánbusz járatok biztosítják a tömegközlekedést.Ideális választás azoknak, akik nyugodt, zöld környezetben szeretnének élni, mégis elérhető közelségben Budapesthez.A családi ház 2026 év végéig elkészül.Irodánk teljes körű INGYENES hitelügyintézést vállal az ország összes bankjával! Kulcsátadásig követjük az ügymenetet. Szerződéskötéshez, és bármilyen jogi kérdésben saját ügyvédeink állnak rendelkezésre !Ha megtekintené keressen akár hétvégén is!
További adatok
Telekterület: 848 m2
Kert mérete: 848 m2
Erkély mérete: 17 m2
Felszereltség: -
Parkolás: -
Kilátás: -
Egyéb extrák:  
-
Hirdető adatai
Hirdető neve: Nagy Ingatlan
Kapcsolattartó: Juhászné Andrea
Hirdető telefonszáma: 06 70 77 22 460
Honlap: -