Pest megye, Tahitótfalu
 

Ingatlan adatai
Irányár: 170 000 000 Ft
Típus: ház
Kategória: eladó
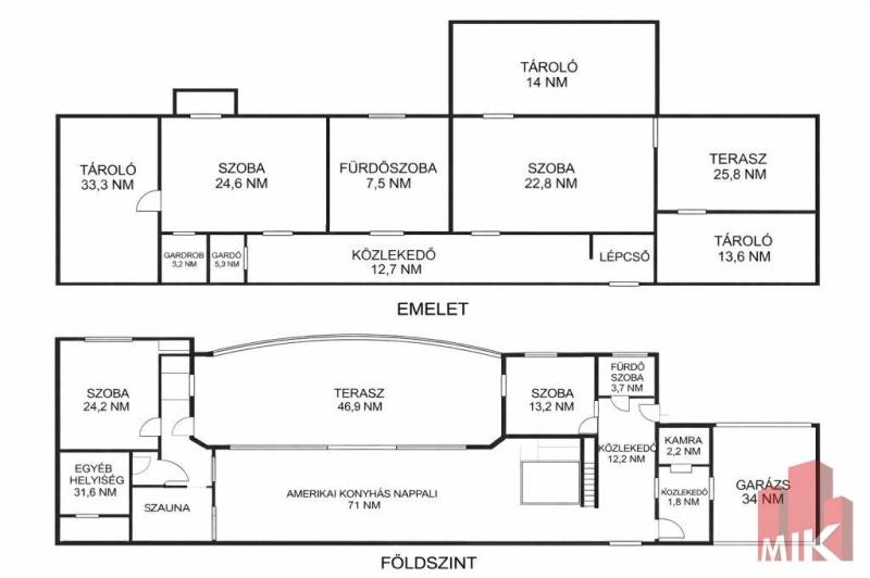
Alapterület: 340 m2
Fűtés: gáz (cirko)
Állapota: felújított
Szobák száma: 5
Építés éve: 1999
Szintek száma: -
Részletes leírás
Eladó prémium családi ház Tahitótfaluban – Dunakanyar, 340 nm, 1710 nm telek, wellness & vállalkozási lehetőségA festői Tahitótfalu településen, a Dunakanyar egyik legszebb részén kínálunk megvételre egy kivételes adottságokkal rendelkező, belterületi családi házat.Az ingatlan egy 1710 nm-es, parkosított telken helyezkedik el, összesen 340 nm lakóterülettel, két szinten. A téglaépítésű ház 7 cm szigeteléssel ellátott, összközműves, műszakilag karbantartott és 2021-ben jelentős felújításon esett át (elektromos hálózat csere, burkolatok, festés, szaniterek, modern új konyha kialakítása).Főbb jellemzők:5 tágas szobaKonyha + étkező3 fürdőszobaWellness részleg: jakuzzi, szaunaKülön mosókonyhaGázcirkó fűtés padlófűtésselFatüzelésű kandalló a nappalibanHűtő-fűtő klímaberendezésekA nagy terek és a két szint kényelmes, elegáns életteret biztosítanak akár nagycsaládosok számára is.Kültéri extrák:Hangulatos terasz kerti szökőkúttalA kert hátsó részében dísztóKülön grill teraszDupla garázs szerelőaknávalElektromos kapuAutomata öntözőrendszerNagyméretű telek, különálló épülettel – vállalkozásra is ideálisA környék infrastruktúrája kiváló: a közelben élelmiszerbolt, buszmegálló és óvoda is megtalálható.Ez az ingatlan tökéletes választás azok számára, akik békés, természetközeli környezetben képzelik el otthonukat, ugyanakkor fontos számukra a jó megközelíthetőség és az értékálló lokáció.Amennyiben egy elegáns, komfortos és sokoldalúan hasznosítható otthont keres a Dunakanyar szívében, várom megtisztelő hívását.MIK azonosító: 3991759
További adatok
Telekterület: 1 710 m2
Kert mérete: 1 710 m2
Erkély mérete: 72 m2
Felszereltség: -
Parkolás: -
Kilátás: kertre néző
Egyéb extrák:  
-
Hirdető adatai
Hirdető neve: MIK Magyar Ingatlan Központ
Kapcsolattartó: Rákos Éva
Hirdető telefonszáma: +36-70-4032233
Honlap: -