Hajdú-Bihar megye, Bocskaikert
 

Ingatlan adatai
Irányár: 85 070 000 Ft
Típus: ház
Kategória: eladó
Alapterület: 93 m2
Fűtés: gáz (cirko)
Állapota: új
Szobák száma: 4
Építés éve: 2026
Szintek száma: -
Részletes leírás
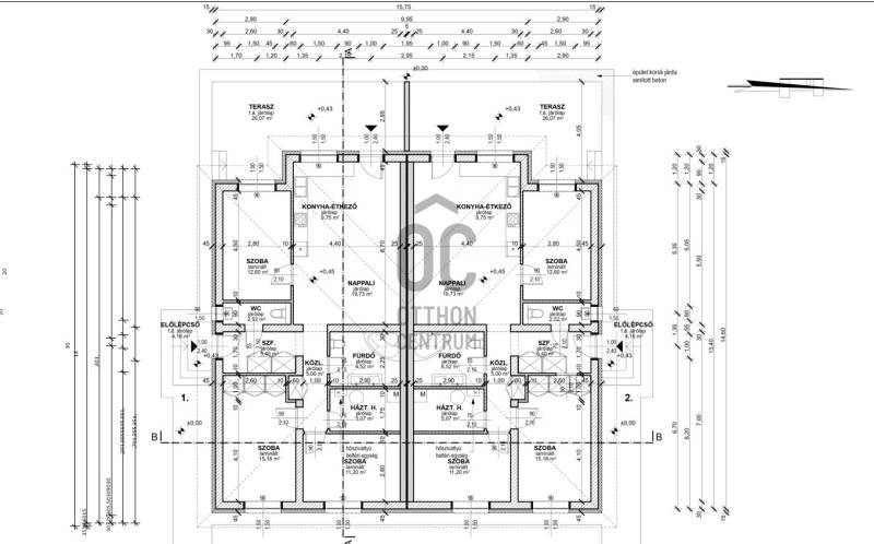
Bocskaikert csendes, nyugodt részén, 570 m²-es telken modern kialakítású, új építésű ikerház épül, amely ideális választás mindazok számára, akik korszerű és energiatakarékos otthont keresnek.Az ingatlan egy 92,86 m²-es, új építésű, 3 szobás + amerikai konyhás-nappalis ikerház, amely átgondolt térkialakítással és kimagasló műszaki tartalommal valósul meg.Szerkezet és szigetelés:- 30 cm-es Porotherm/Leier tégla falazat- 15 cm homlokzati EPS hőszigetelés- 10 cm XPS lábazati szigetelés- 30 cm födémszigetelés- 3 rétegű üvegezésű, 6 légkamrás műanyag nyílászárók- A korszerű gépészet és a modern technológia hosszú távon alacsony fenntartási költséget biztosít.Fűtés és gépészet:- korszerű padlófűtés, vagy gáz hiányában modern hőszivattyús rendszer- a vételár része 2 db inverteres klíma- energiahatékony, alacsony rezsijű működés- közművek telken belüli csatlakoztatása (amennyiben adott)- városi víz hiányában házi vízmű- csatorna hiányában 3 m³-es zárt szennyvíztartály (igény szerint nagyobb kapacitással, felár ellenében)Az építkezés kezdete: 2026.A kivitelező az ügyfél igényei szerint is vállalja az építést, akár családi ház kivitelezését is 1141 m²-es telken, 600 000 Ft/m² áron, 2026. március 15-ig érvényes ajánlattal.Ez az ingatlan kiváló választás mindazoknak, akik megbízható kivitelezésű, jól szigetelt, energiatakarékos új otthont szeretnének nyugodt környezetben, Bocskaikert kedvelt részén.Érdeklődjön most, és foglalja le időben új otthonát!
További adatok
Telekterület: 571 m2
Kert mérete: 571 m2
Erkély mérete: 30 m2
Felszereltség: -
Parkolás: -
Kilátás: -
Egyéb extrák:  
-
Hirdető adatai
Hirdető neve: Otthon Centrum
Kapcsolattartó: Takács Tamás
Hirdető telefonszáma: +36 70 388 6186
Honlap: -