Budapest, VII.kerület
 

Ingatlan adatai
Irányár: 54 990 000 Ft
Típus: lakás (tégla)
Kategória: eladó
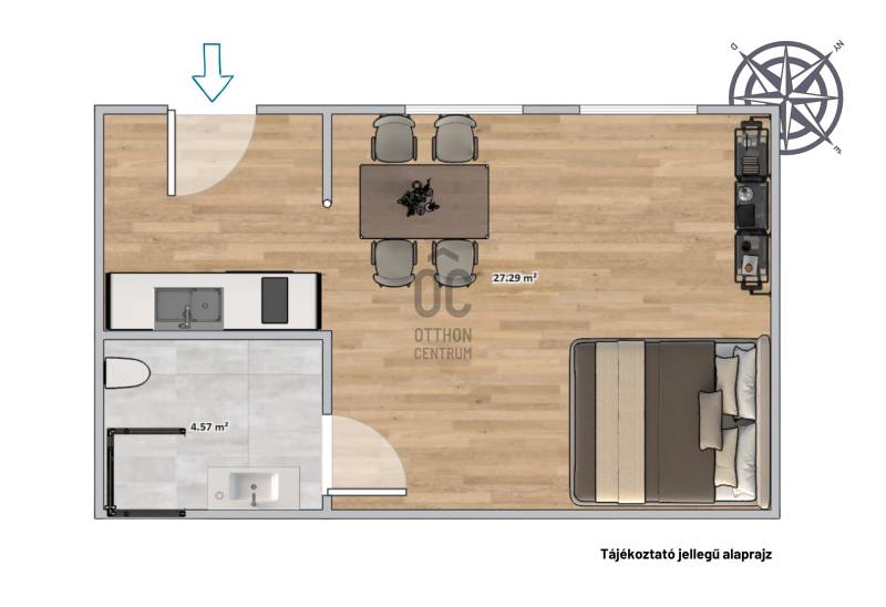
Alapterület: 31 m2
Fűtés: elektromos
Állapota: -
Szobák száma: 1
Építés éve: 1910
Szintek száma: -
Részletes leírás
A VII. kerület szívében, keresi új tulajdonosát egy 31 m2-es, élhető és jó berendezhető terekkel rendelkező, azonnal birtokba vehető, 1 szobás lakás. Ideális választás azoknak, akik fiatalos saját otthont, vagy könnyen bérbe adható kislakást keresnek és szeretik a város lüktetését, értékelik a klasszikus bérházi hangulatot.KÖRNYÉK és KÖZLEKEDÉS:➡️ Budapest VII. kerülete, Középső-Erzsébetváros➡️ Kiváló infrastruktúrával és tömegközlekedéssel rendelkező, pezsgő mégis élhető környék.➡️ A Keleti pályaudvar 5 perces sétatávolság, ahol többféle közlekedési lehetőség biztosítja a gyors és kényelmes eljutást a város bármely pontjára.➡️ M2 és M4 metróvonal, számos villamos, troli és buszjárat, valamint nemzetközi és belföldi vasúti kapcsolat is rendelkezésre áll.➡️ A közvetlen környezetben több iskola, óvoda, orvosi rendelő, gyógyszertár, több játszótér, park és közösségi tér is található.➡️ Gyorsan elérhető a Metropolitan Egyetem, az ELTE és a Semmelweis karai, könyvtár, edzőtermek és művelődési ház.➡️ Kikapcsolódáshoz közel van a Puskás Aréna és a Városliget is. ➡️ Vásárolni a közeli boltokon kívül az Aréna Mall és a Garay Center lehet jó választás.➡️ Parkolás közterületen, fizetős övezetben megoldható.A HÁZ PARAMÉTEREI:➡️ 1900-as évek elején épült, keskeny udvaros, 3 emeletes, gangos téglaépület.➡️ A ház statikailag rendben van, a lépcsőház karbantartott, a homlokzat szép, a közös terek rendezettek.➡️ Nyugodt és biztonságos, klasszikus pesti bérház kiváló lakóközösséggel.➡️ A társasház lifttel nem rendelkezik.FONTOS INFÓK A LAKÁSRÓL:➡️ 1. emeleti, 31 m2-es, 1 szobás, fiatalos ingatlan.➡️ 2019-ben lett teljeskörűen felújítva, ennek dokumentációja rendelkezésre áll.➡️ A lakás állapota jó, a nagy belmagasság és a hatalmas ablakok tágas térérzetet biztosítanak.➡️ A konyha modern és gépiesített (elektromos főzőlap, elszívó, elektromos sütő, mosogatógép, mikró, beépített hűtő).➡️ A zuhanykabinnal és mosógéppel felszerelt fürdőszoba és a WC egy helyiségben kapott helyet. ➡️ A tágas lakószoba világos, dél-nyugati tájolásának köszönhetően.➡️ A modern műanyag kialakítású nyílászárók redőnnyel és szúnyoghálóval felszereltek.➡️ A lakás fűtése elektromos rendszerű, de a gázcsonk is rendelkezésre áll, tehát ha az új tulajdonos alakítani szeretné, megteheti.➡️ A hűtéséről hűtő-fűtő légkondicionáló gondoskodik.➡️ A havi rezsi összesen kb.25.000 Ft, a közös költség 15.000 Ft.➡️ A gépesített konyhabútor és a lakásban lévő bútorzat a vételár részét képezi.EGYÉB:➡️ A lakás jelenleg nem lakott, gyorsan költözhető.➡️ Saját célra kényelmes otthon, bérbeadási céllal értékálló befektetés lehet.➡️ Az Airbnb megengedett a házban, de a hosszú távú bérlők és az egyetemisták is kedvelik a környéket.AZ INGATLAN MEGTEKINTHETŐ:➡️ Személyesen➡️ Online személyes bejelentkezésselFINANSZÍROZÁSBAN – ONLINE ÜGYINTÉZÉSSEL IS – SEGÍTÜNK!✅ Bank-független hitelcenterünk díjmentesen versenyezteti az összes bank és hitelintézet ajánlatát.✅ Önnek csak annyi a dolga, hogy egyeztet munkatársunkkal, majd kiválasztja a hosszú távon is legkedvezőbb konstrukciót.✅ Szakértőink 20 év tapasztalattal, fogyasztóbarát lakáshitelekkel, babaváró hitellel és teljes körű CSOK Plusz és OTTHON START program ügyintézéssel várják.✅ Időpont-egyeztetéssel munkaidő után is elérhetők.Kérdéseire szívesen válaszolok, kérem hívjon bizalommal!
További adatok
Telekterület: -
Kert mérete: -
Erkély mérete: -
Felszereltség: -
Parkolás: -
Kilátás: udvari
Egyéb extrák:  
-
Hirdető adatai
Hirdető neve: Otthon Centrum
Kapcsolattartó: Alföldi-Szabó Erika
Hirdető telefonszáma: +36 70 412 3181
Honlap: -