Budapest, VIII.kerület
 

Ingatlan adatai
Irányár: 44 990 000 Ft
Típus: lakás (tégla)
Kategória: eladó
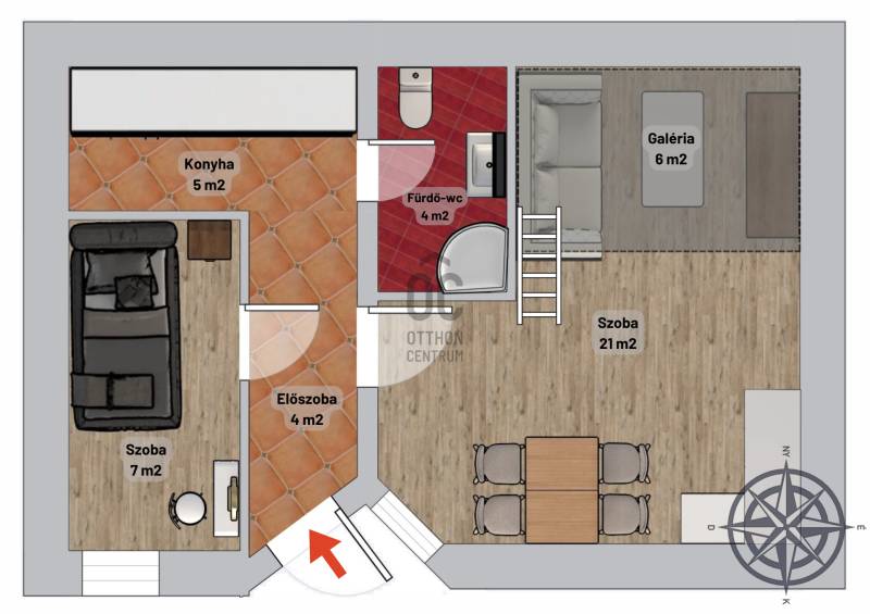
Alapterület: 41 m2
Fűtés: gáz (konvektor)
Állapota: -
Szobák száma: 2
Építés éve: 1910
Szintek száma: -
Részletes leírás
Budapest VIII. kerületében, a Mátyás tér környékén eladó egy 41 m2-es, fekvő galériával rendelkező, jó állapotú, hangulatos, 2 szobás lakás.Ha első otthonát szeretné megtalálni, vagy kiadásra ideális lakást keres, ezt az ingatlant feltétlenül nézze meg!LAKÁS:➡️ Földszinti, 41 m2-es, kétszobás, fekvő galériás nappalival rendelkező ingatlan.➡️ Műszakilag és esztétikailag jó állapotú, fiatalos lakás.➡️ Jelenlegi felosztása: előszoba, fekvő galériás nappali - étkező, hálószoba, konyha, fürdőszoba-wc.➡️ A lakás tájolása keleti, ablakai a belső udvarra néznek, kevés természetes fény jut be, cserében csendes.➡️ Fűtését gáz konvektor biztosítja, de rendelkezésre áll egy hűtő-fűtő klíma is, illetve elektromos fűtőpanel.➡️ Az energetikai tanúsítvány készítése folyamatban van, amint rendelkezésre áll, azzal az ingatlan hirdetése frissítése kerül.➡️ Közös költsége 20.880 Ft/hó, ami tartalmazza a szemétszállítást, a takarítást, biztosítást és felújítási alapot is és a vízdíjat.TÁRSASHÁZ:✅ 1890-ben épült, 3 szintes, 16 lakásos téglaépület.✅ Külső és belső homlokzata felújításra szorul.✅ Lakóközössége vegyes korosztály.KÖRNYÉK és KÖZLEKEDÉS:➡️ VIII. kerület, Józsefváros, Csarnok negyed.➡️ Központi fekvésű, dinamikusan fejlődő környék az egyetemek közelében (SE, BME, ELTE)➡️ Kiváló a közlekedés, M2 és M3 metró, 4-6os villamos és több buszjárat pár perc sétával elérhetők.➡️ A Teleki téri piac, a Blaha Lujza tér, a II. János Pál pápa tér 8 perces távolság, gyalogosan minden rendelkezésre áll a hétköznapokhoz.➡️ Az utóbbi években egyre több felújított ház és új beruházás jelenik meg, fiatalok, egyetemisták, befektetők körében egyre népszerűbb terület.➡️ Szerethető környék azok számára, akik belváros-közeli, megfizethető és élhető városi környezetet keresnek.AZ INGATLAN MEGTEKINTHETŐ:✅ Személyesen,✅ Online személyes bejelentkezéssel,✅ Irányított webstán keresztül.FINANSZÍROZÁSI KÉRDÉSEKBEN ONLINE ÜGYINTÉZÉSSEL IS SEGÍTÜNK:➡️ Bank-független hitelcentrumunk díjmentesen segít megtalálni a számodra legjobb lakáshitelt vagy támogatási formát.✔️ Minden bank és pénzintézet ajánlata egy helyen – összehasonlítva, versenyeztetve✔️ Neked csak annyi a dolgod, hogy elmondd, mire van szükséged – a többit intézzük mi✔️ Lakáshitel, CSOK Plusz, Babaváró, Otthon Start program – teljes körű ügyintézéssel✔️ 20 év tapasztalat, személyre szabott tanácsadás✔️ Online is elérhető, akár munkaidőn túl egyeztetveKérdés esetén és megtekintési időponttal kapcsolatban VÁROM HÍVÁSOD!
További adatok
Telekterület: -
Kert mérete: -
Erkély mérete: -
Felszereltség: -
Parkolás: -
Kilátás: udvari
Egyéb extrák:  
-
Hirdető adatai
Hirdető neve: Otthon Centrum
Kapcsolattartó: Sulok Bence
Hirdető telefonszáma: +36 70 412 3216
Honlap: -