Pest megye, Halásztelek
 

Ingatlan adatai
Irányár: 114 900 000 Ft
Típus: ház
Kategória: eladó
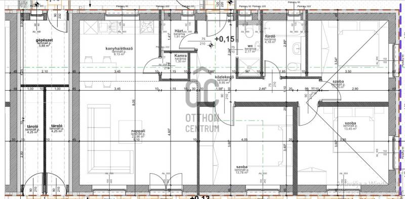
Alapterület: 91 m2
Fűtés: -
Állapota: új
Szobák száma: 4
Építés éve: 2026
Szintek száma: -
Részletes leírás
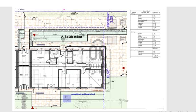
Halásztelken újépítésű ikerház 2026-os évi átadással, kerül értékesítésre.- nettó 90,6 m2- a házhoz tartozó telek telek kb. 450 (beépítetlen zöldterület/kertrész ebből 178,44 m2)- amerikai konyhás nappali + 3 hálószoba- kamra- fűtése: hőszivattyú + padlófűtés- külső tároló- választható burkolatok - kulcsrakészen- főfalak 30-as N+F kerámia falazóelem- 10, és 20 cm ytong válaszfalak- oldalfalon 15 cm grafitos szigetelés- aljzatban 8 cm lépésálló, födémen 2x15 cm kőzetgyapot szigetelés- zártrendszerű szennyvízelvezetés, csatornarákötésre előkészítve- vízellátás fúrt kútról, víztisztító rendszerrel- fa födém, szeglemezes tetőszerkezet, cserépfedésselHitel, CSOK, Otthon Start igényelhető.Várható átadás: 2026. III. negyedévAz energetikai tanúsítvány készítése folyamatban van.További információért kérem keressen!
További adatok
Telekterület: 450 m2
Kert mérete: 450 m2
Erkély mérete: -
Felszereltség: -
Parkolás: -
Kilátás: -
Egyéb extrák:  
-
Hirdető adatai
Hirdető neve: Otthon Centrum
Kapcsolattartó: Nemes Mária
Hirdető telefonszáma: +36 70 716 9176
Honlap: -