Pest megye, Dány
 

Ingatlan adatai
Irányár: 65 000 000 Ft
Típus: ház
Kategória: eladó
Alapterület: 98 m2
Fűtés: gáz (cirko)
Állapota: -
Szobák száma: 4
Építés éve: 2022
Szintek száma: -
Részletes leírás
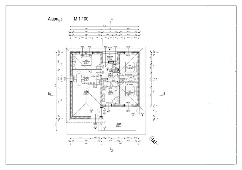
Újszerű családi ház eladó Dányon, az Arany János utcában – csendes, újépítésű környezetben.Dány egyik legnyugodtabb, dinamikusan fejlődő részén, újépítésű házak szomszédságában kínálunk megvételre egy 2022-ben épült, modern kialakítású, egyszintes családi házat, amely kiváló választás családok számára vagy azoknak, akik korszerű, alacsony rezsijű otthont keresnek.Az ingatlan 98 m² lakóterülettel rendelkezik, átgondolt, élhető elrendezéssel:• tágas, napfényes amerikai konyhás nappali, közvetlen teraszkapcsolattal• 3 külön nyíló, jól bútorozható szoba• kényelmes, sarokkádas fürdőszoba WC-vel• külön vendég WC kézmosóval• közlekedő és praktikus elrendezésA nappaliból közvetlen kilátás nyílik a 25 m²-es teraszra és az udvarra, amely ideális helyszín családi és baráti összejövetelekhez, pihenéshez.A ház egy 902 m²-es, rendezett telken helyezkedik el, amely kiváló lehetőséget biztosít kertészkedésre, játszótér vagy akár további fejlesztések kialakítására.Műszaki tartalom és felszereltség:• 2022-es építés – újszerű állapot• gázcirkó fűtés, gazdaságos fenntartás• 3 rétegű műanyag nyílászárók a kiváló hőszigetelésért• 15 cm vastag EPS homlokzati szigetelés• igényes, egyedi kivitelű beltéri ajtók• modern, energiatakarékos kialakításElhelyezkedés:Az ingatlan Dány csendes, újépítésű házakkal körülvett részén található, nyugodt, családbarát környezetben. A településen minden fontos intézmény és szolgáltatás elérhető, Budapest pedig autóval kényelmes távolságra van.Ez a ház ideális választás azok számára, akik egy újszerű, azonnal költözhető, minőségi otthont keresnek nyugodt környezetben.További információért és megtekintésért keressen bizalommal!Irodánk ingyenes hiteltanácsadással, CSOK Plusz, Otthon Start Program ügyintézéssel is foglalkozik.Bankfüggetlen hitelközpontunk az összes bank- és hitelintézet ajánlatát versenyezteti ügyfeleink számára.Egyedi kamat- és díjkedvezmények érhetők el így központunk révén, ami a bankfiókokban nem.A teljes hivatali ügyintézés terhét levesszük a válláról, ezzel időt és energiát és pénzt spórolva meg!Hívjon még ma!
További adatok
Telekterület: 902 m2
Kert mérete: 902 m2
Erkély mérete: 25 m2
Felszereltség: -
Parkolás: -
Kilátás: udvari
Egyéb extrák:  
-
Hirdető adatai
Hirdető neve: Intor Ingatlan Powered By RH
Kapcsolattartó: Kertész Rebeka
Hirdető telefonszáma: +36 70 467 6820
Honlap: -