Budapest, XI.kerület
 

Ingatlan adatai
Irányár: 64 900 000 Ft
Típus: lakás (tégla)
Kategória: eladó
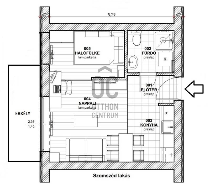
Alapterület: 31 m2
Fűtés: házközponti egyedi méréssel
Állapota: -
Szobák száma: 2
Építés éve: 2006
Szintek száma: -
Részletes leírás
XI. kerület frekventált részén, a Kondorosi lakóparkban egy 2. emeleti, keleti tájolású, amerikai konyhás nappali + ablakos hálófülkés, újszerű állapotú lakás. Amennyiben egy kiváló adottságokkal rendelkező, értékálló ingatlant keres frekventált, mégis zöld környezetben, ezt a lakást feltétlenül nézze meg!KÖRNYEZET:- 11. kerület - Kelenföld- Tömegközlekedéssel, átszállás nélkül: Bikás Park M4 metró - 9 percMóricz Zsigmond körtér - 15 percSavoya park - 9 perc- Gépjárművel 11 perc alatt érheted el az M7-es autópályát- 400 méteren belül található ALDI, Edzőterem, Uszoda, Gyógyszertár- Vakvarjú étterem 4 perc sétára- A Dunapart 8 perc sétatávolságÉPÜLET- Kondorosi Lakópark- 2006-ban átadott, liftes, karbantartott épület- Kulturált, fiatalos lakóközösség- Belső kert igényes, gondozott- Teremgarázsok az épület alattLAKÁS- 2. emeleti- 29 m2 lakótér + 4 m2 erkély- Amerikai konyhás nappali + ablakos hálófülke- Keleti tájolású- A burkolatok jó állapotban vannak- Hőszigetelt műanyag nyílászárók- Fűtést és melegvizet házközponti kazán biztosítja, hidegről klíma gondoskodikPARKOLÁS- Kiadó felsziní beálló vagy teremgarázs bérelhető- Amennyiben saját tulajdonú beállót vagy teremgarázst szeretnél, segítünk ennek megtalálásábanHa fiatalos és igényes lakókörnyezetben szeretnéd megtalálni igényes új otthonod, ezt az ingatlant feltétlenül nézd meg személyesen is!Hívjon bizalommal!Ez az ingatlan a \"Hűség csomag\" megbízási portfólióhoz tartozik. Részletek az Otthon Centrum weboldalán.
További adatok
Telekterület: -
Kert mérete: -
Erkély mérete: 4 m2
Felszereltség: -
Parkolás: -
Kilátás: kertre néző
Egyéb extrák:  
-
Hirdető adatai
Hirdető neve: Otthon Centrum
Kapcsolattartó: Török Tamás
Hirdető telefonszáma: +36 70 412 3616
Honlap: -