Budapest, XV.kerület
 

Ingatlan adatai
Irányár: 289 000 000 Ft
Típus: iroda
Kategória: eladó
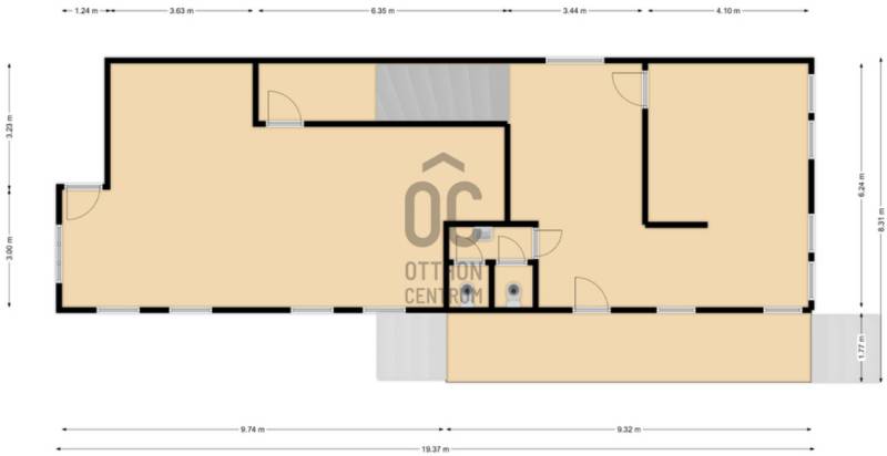
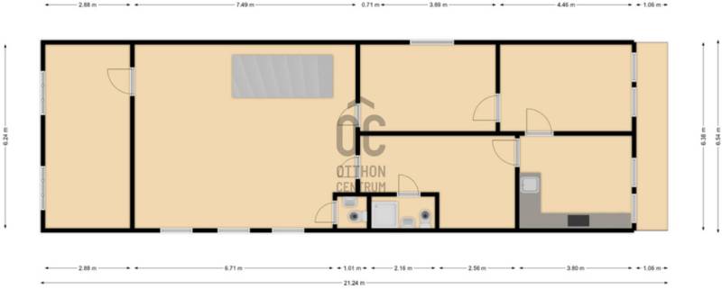
Alapterület: 400 m2
Fűtés: -
Állapota: -
Szobák száma: -
Építés éve: -
Szintek száma: -
Részletes leírás
EGYEDÜLÁLLÓ LEHETŐSÉG BEFEKTETŐK SZÁMÁRA!Budapest 15. kerületében, Rákospalotán kínálunk eladásra egy 400 nm alapterületű, üzleti célú ingatlant, amely ideális választás lehet IRODÁNAK, BEMUTATÓTEREMNEK vagy ÜZLETHELYISÉGNEK. A 3 SZINT ÉS SZUTERÉN kimondottan alkalmas és jogilag is megfelelő 8 LAKÁSOS TÁRSASHÁZ KIALAKÍTÁSÁRA.Az ingatlan egy 1500 NM-ES TELKEN helyezkedik el, amely bővítési lehetőségeket kínál, így a jövőbeni fejlesztési tervek megvalósítására is alkalmas. Az ingatlan jelenlegi ÁLLAPOTA JÓ.Fűtése gáz cirkó rendszerrel megoldott, amely biztosítja a kényelmes és gazdaságos fűtést a hidegebb hónapokban is. Az épülethez tartozik egy 16 nm-es terasz és egy 7 nm-es erkély, amelyek lehetőséget adnak a szabadban való pihenésre vagy a vendégek fogadására. A panoráma, amely az ingatlanból nyílik, kellemes és inspiráló környezetet teremt a munkavégzéshez, ugyanis egyik ablakból sem látni be az ingatlanba, TELJESEN PRIVÁT ÉRZÉS.A környék ELLÁTOTTSÁGA KIVÁLÓ, a Pólus Centertől néhány percre van, így a mindennapi élet kényelmesen megoldható. Az ingatlan KÖZLEKEDÉSI CSOMÓPONT KÖZELÉBEN helyezkedik el, ami kitűnő közlekedést biztosít a város különböző részeire az itt dolgozóknak, vagy ha átalakítjuk társasházzá, akkor a lakások értékesítése esetén is komoly érv.Rákospalota CSENDES, BIZTONSÁGOS környezete ideális választás lehet azok számára, akik egy NYUGODT, de mégis jól elérhető helyszínen szeretnék elhelyezni üzleti tevékenységüket. A környék folyamatosan fejlődik, ami további lehetőségeket kínál a befektetők számára, hiszen a jövőbeni értéknövekedés szempontjából kedvező adottságokkal rendelkezik. Az ingatlan befektetési lehetőségei széles spektrumot ölelnek fel, így akár új funkciók kialakítására is van lehetőség. Az ingatlan adottságai és lokációja miatt ideális választás lehet a jövőbeli üzleti tervei megvalósításához. Amennyiben további kérdései lennének, vagy szeretné személyesen is megtekinteni az ingatlant, hívjon bizalommal!
További adatok
Telekterület: -
Kert mérete: -
Erkély mérete: -
Felszereltség: -
Parkolás: -
Kilátás: -
Egyéb extrák:  
-
Hirdető adatai
Hirdető neve: Otthon Centrum
Kapcsolattartó: Sebestyén Nikoletta
Hirdető telefonszáma: +36 70 388 5511
Honlap: -