Budapest, XIII.kerület
 

Ingatlan adatai
Irányár: 85 000 000 Ft
Típus: lakás (tégla)
Kategória: eladó
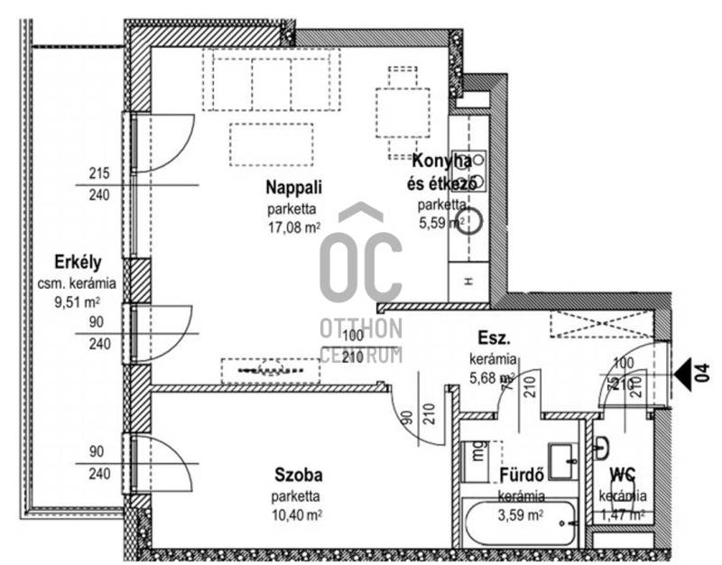
Alapterület: 42 m2
Fűtés: -
Állapota: -
Szobák száma: 2
Építés éve: 2023
Szintek száma: -
Részletes leírás
2023-as átadású, magas műszaki tartalmú, 28 lakásos társasház 3. emeletén eladó egy nappali + 1 hálós, nagy erkélyes, déli fekvésű, napsütötte lakás.A lakás a modern kor műszaki elvárásai szerint épült, mint például:•Hőszivattyús mennyezeti hűtő/fűtő rendszer;•Távolról, helyiségenként vezérelhető hőmérséklet-beállítás;•Prémium burkolatok és szaniterek;•Mosdószekrény mosdóval, zuhanyfal és LED világítású tükör;•A plafonon rejtett LED világításhoz kiállás készítése;•Videós kaputelefon.Az árban benne vannak a beépített bútorok, úgymint előszobafal cipőtartóval, az egyik falat teljesen betöltő gardróbszekrény a hálószobában, valamint a konyhabútor a beépített gépekkel. A konyhában az alábbi gépek találhatóak: nagyméretű hűtő mélyhűtővel, mosogatógép, főzőlap, sütő, szagelszívó, mikró.A ház elhelyezkedése kiváló, a Gyöngyösi utcai metrómegálló pár perces séta, 500 méteren belül szórakozási és bevásárlási lehetőségek (pl. Tesco extra, Lidl, Duna Pláza) is elérhetőek.A lakáshoz tartozik egy normál méretű parkoló a -1. szinten (ára 7MFt), valamint egy 4 m2 alapterületű tároló (ára 3 MFt) a földszinten.Ha meg szeretné nézni a lakást, hívjon telefonon.
További adatok
Telekterület: -
Kert mérete: -
Erkély mérete: 10 m2
Felszereltség: -
Parkolás: -
Kilátás: utcai
Egyéb extrák:  
-
Hirdető adatai
Hirdető neve: Otthon Centrum
Kapcsolattartó: Zemlényi Edit
Hirdető telefonszáma: +36 70 412 3171
Honlap: -