Budapest, XXI.kerület
Csepel-Királyerdő 

Ingatlan adatai
Irányár: 114 900 000 Ft
Típus: ház
Kategória: eladó
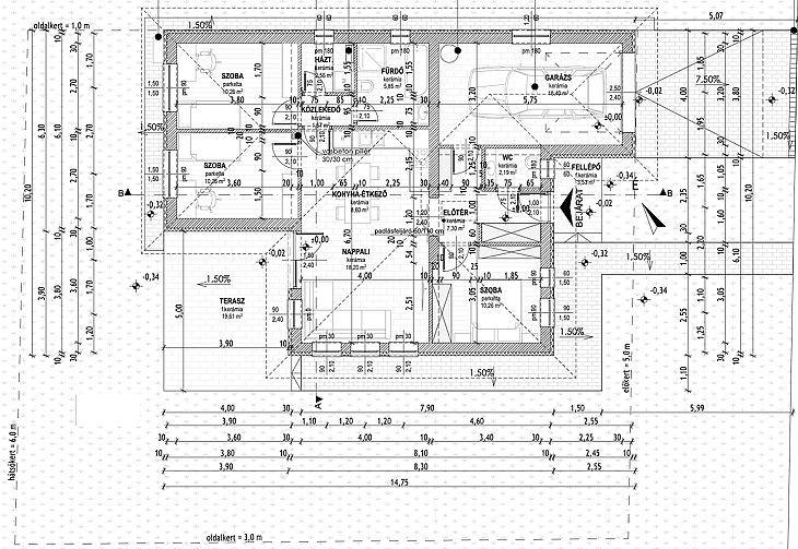
Alapterület: 91 m2
Fűtés: egyéb
Állapota: új
Szobák száma: 4
Építés éve: 2026
Szintek száma: -
Részletes leírás
Eladó újépítésű önálló családi ház a XXI. kerület szomszédságában!Eladásra kínálunk egy 91 négyzetméteres, földszintes, önálló családi házat Csepel agglomerációjában, a Dunapart csendes, kertvárosias részén. Az ingatlan 2026 év végéig kerül átadásra, így a leendő tulajdonos még lehetőséget kap arra, hogy belső kialakítását és burkolatait saját ízlése szerint válassza ki. A modern technológiákkal épülő otthon kiváló hőszigeteléssel, energiatakarékos megoldásokkal és praktikusan kialakított belső terekkel várja új lakóit.Az elhelyezkedés ideális azok számára, akik nyugodt, családbarát környezetre vágynak, ugyanakkor fontos számukra a jó közlekedés és a főváros közelsége. Csepel autóval vagy tömegközlekedéssel néhány perc alatt elérhető, a környéken pedig iskola, óvoda, boltok és egyéb szolgáltatások is megtalálhatók. A közelben elterülő zöldövezetek és a Duna közelsége kellemes, természetközeli életérzést kínálnak.Az ingatlan banki finanszírozással is megvásárolható, melyben irodánk ingyenes tanácsadással áll rendelkezésére, hogy a jelenleg piacon lévő hitelkonstrukciók közül a legkedvezőbbet sikerüljön választani.További kérdés kapcsán keressen minket bizalommal!
További adatok
Telekterület: 600 m2
Kert mérete: 600 m2
Erkély mérete: -
Felszereltség: -
Parkolás: -
Kilátás: -
Egyéb extrák:  
-
Hirdető adatai
Hirdető neve: MPD Hungary Kft.
Kapcsolattartó: Pastori Della Bosco Kft.
Hirdető telefonszáma: +36302600875
Honlap: -