Pest megye, Cegléd
 

Ingatlan adatai
Irányár: 69 900 000 Ft
Típus: lakás (újépítésű)
Kategória: eladó
Alapterület: 75 m2
Fűtés: -
Állapota: új
Szobák száma: 4
Építés éve: 2026
Szintek száma: -
Részletes leírás
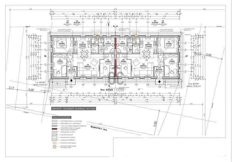
Cegléden a kertváros csendes, családias övezetében most induló építkezéssel kínálunk megvételre egy modern, energiatakarékos ikerház felet.Az ingatlan a mai kor igényeinek megfelelő műszaki tartalommal, élhető terekkel és saját kertkapcsolattal készül- ideális választás családoknal vagy nyugodt környezetre vágyóknak.Az ingatlan műszaki paraméterei:- Tartó szerkezet:Az épület alapozása sávalapozással történik, 37.5 cm vastag via blokk falazat - Válaszfalak :10 cm vastag válaszfal téglából készülnek- Födém szerkezet :Az épületen fa gerendás födém készül fenyő gerendákkal- Tetőszerkezet :Fából készül, hagyományos ács és csavaros kötésekkel, fogópárokkal- Nyílászáró szerkezetek : műanyag- Burkolatok :Meleg padlós helyiségnél laminált parketta, hidegpadlós helyiségeknél kerámia burkolat- Térburkolat: Viacolor térburkolat készül- Fűtés: Hőszivattyús fűtés plusz,zárt égésterű gázkazánokkal, radiátoros fűtéssel lesz megoldva- Parkoló: A telken belül két gépkocsi parkolása megoldott- Külön bejárat a 2 lakáshoz és teljesen különálló kert!!!Elosztása: nappali, konyha + 3 hálószobaBővebb információkért keressen bizalommal!Ne hagyja ki ezt a remek lehetőséget!Az energetikai tanúsítvány elkészítése folyamatban van.A hirdetés mesterséges inteligencia által generált képeket tartalmaz, melyrk a valóságtól eltérnek.
További adatok
Telekterület: -
Kert mérete: -
Erkély mérete: -
Felszereltség: -
Parkolás: -
Kilátás: utcai
Egyéb extrák:  
-
Hirdető adatai
Hirdető neve: Otthon Centrum
Kapcsolattartó: Törökné Varga Rita
Hirdető telefonszáma: +36 70 388 5251
Honlap: -