Komárom-Esztergom megye, Komárom
 

Ingatlan adatai
Irányár: 35 900 000 Ft
Típus: lakás (tégla)
Kategória: eladó
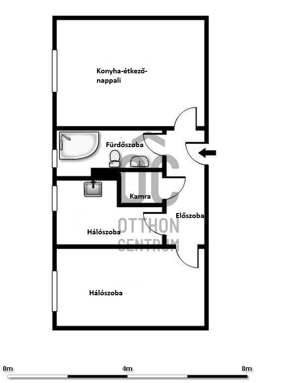
Alapterület: 49 m2
Fűtés: távfűtés
Állapota: -
Szobák száma: 3
Építés éve: 1970
Szintek száma: -
Részletes leírás
Komárom Molaj-lakótelepen eladó egy 3szobássá alakított magasföldszinti lakás.A lakás jellemzői:- 49nm alapterület.- 3 különnyíló szobával rendelkezik, mivel a konyhából hálószobát alakítottak ki.- Villanyvezetékeket részleges kicserélték.- Műanyag ablakokkal rendelkezik.- Burkolatok előszobában, fürdőszobában járólap, szobákban linóleum és laminált parketta.- A fűtés és a melegvíz egyéni órákkal mért távhős, termosztáttal vezérelhető.- A környék igazán csendes, kimondottan zöldövezeti. A társasház mellett park és jól felszerelt játszótér található.További információért várom hívását!
További adatok
Telekterület: -
Kert mérete: -
Erkély mérete: -
Felszereltség: -
Parkolás: -
Kilátás: utcai
Egyéb extrák:  
-
Hirdető adatai
Hirdető neve: Otthon Centrum
Kapcsolattartó: Takács András
Hirdető telefonszáma: +36 70 412 3066
Honlap: -