Pest megye, Hernád
 

Ingatlan adatai
Irányár: 329 000 000 Ft
Típus: ház
Kategória: eladó
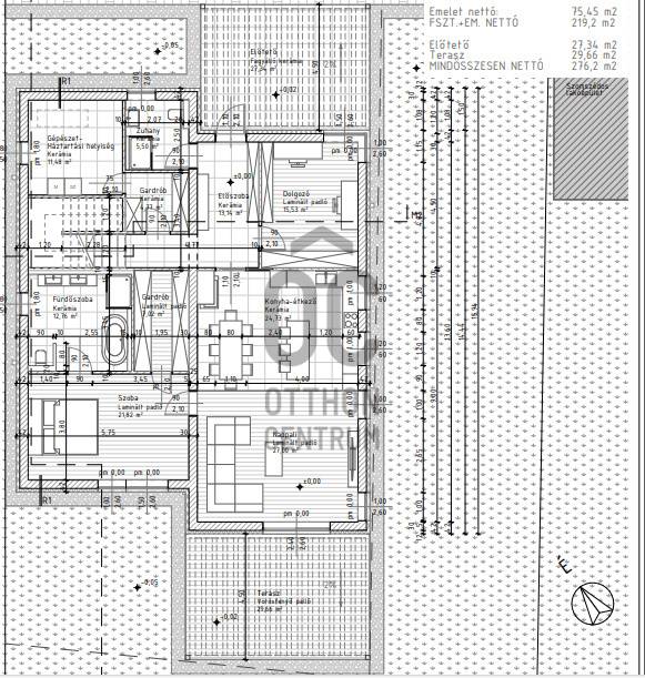
Alapterület: 363 m2
Fűtés: -
Állapota: -
Szobák száma: 5
Építés éve: 2020
Szintek száma: -
Részletes leírás
Exkluzív luxus családi rezidencia eladó Dabasi - Hernádon – kompromisszumok nélküli életstílusHernád egyik legnyugodtabb, presztízsértékű részén kínáljuk megvételre ezt a kivételes adottságokkal rendelkező, prémium felszereltségű luxus családi házat, amely minden részletében a minőséget, a kényelmet és a modern technológiát képviseli.\"A ház mögött nem csak kivitelezés, hanem komoly építészeti háttér áll. Az Xdot Építésziroda Kft. több száz megvalósult projektje, családi házaktól prémium lakásokon át, pályázati szinten elismert épületekig. Garancia az átgondolt tervezésre és a hosszú távon is értékálló otthonra.\"Az 363 m² alapterületű, kifogástalan állapotú ingatlan egy 1500 m²-es, gondosan kialakított telken helyezkedik el, és ideális választás mind exkluzív otthont kereső családok, mind értékálló befektetést keresők számára.A rezidencia négy tágas szobával, nappalival amerikai konyhával és 3 elegáns fürdőszobával rendelkezik, ahol a terek arányai és a funkcionális elrendezés a magas életszínvonalat szolgálják.Privát teraszélmények72 m²-es földszinti, fedett, zárt télikert – egész évben használható, reprezentatív élettér80 m²-es emeleti terasz, teljes felületén prémium műfű borítással, zavartalan pihenésre és kikapcsolódásra tervezveParkolás & tárolás – diszkréten megoldva2 gépkocsi számára kialakított fedett beálló, exkluzív méhsejtes LED világítássalA beálló mellett praktikus, esztétikus kerti tárolóBiztonság & intelligens otthonrendszerA ház teljes körű, professzionális védelemmel ellátott:HikVision kamerarendszer (5 kamera, ebből 1 kihangosítható)HikVision kaputelefon24 órás távfelügyeletre kötött biztonsági rendszerParadox hőérzékelőkMozgás- és nyitásérzékelők minden helyiségben és nyílászárónUjjlenyomatos és kódos prémium Marshall bejárati ajtóBelső terek – technológia és eleganciaDesign konyha rejtett szagelszívóval és LED megvilágítással, nyitásérzékelő Elektromos redőnyökAutomata víztisztító rendszerKülön kialakított edzőtér klímával, szellőztető rendszerrel, TV-vel és hangrendszerrelWellness & életstílusFűtött, tengervizes úszómedence, ellenáramoltatóvalMedencéhez tartozó külső zuhanyzóSüllyesztett sütögető – grillezési és bográcsozási lehetőséggelKültéri finn szauna (210x400)A kert végében elhelyezkedő, 40 m²-es, teljesen felszerelt, önálló edzőterem – privát fitness élmény kompromisszumok nélkülKert – fenntartható luxusFúrt kútról működő automata öntözőrendszerHusqvarna Automower 415X robotfűnyíróHangulatos, gondosan megtervezett kerti díszvilágításZárt terasz – a rezidencia ékköveKandalló és pizzasütőTeljes értékű, prémium kültéri konyha szigettel, sütővel és vaslappalHáromrétegű, hőszigetelt üvegtető2×2 szárnyú, elhúzható nyílászárók szúnyoghálóval→ tökéletes helyszín exkluzív vacsorákhoz, baráti összejövetelekhez, minden évszakbanJövőbiztos megoldásokHuawei 3 fázisú, 22 kW-os elektromos autó töltőFűtés, hűtésLevegő-víz hőszivattyúPadlófűtésKlíma hűtésBelső levegő keringetés300 literes, meleg víz bojlerEz az ingatlan nem csupán egy ház, hanem egy tudatosan megtervezett, magas műszaki és esztétikai színvonalú életstílus-rezidencia, ahol a luxus természetes módon válik a mindennapok részévé.Letisztult vonalak, intelligens megoldások és privát luxus – mindez egy harmonikus egésszé formálva. Ez az otthon nem követi a trendeket, hanem szintet képvisel.Az ilyen lehetőségek ritkán kerülnek piacra.Megtekintés kizárólag előzetes egyeztetés alapján.
További adatok
Telekterület: 1 500 m2
Kert mérete: 1 500 m2
Erkély mérete: 112 m2
Felszereltség: -
Parkolás: -
Kilátás: -
Egyéb extrák:  
-
Hirdető adatai
Hirdető neve: Otthon Centrum
Kapcsolattartó: Ladányi Attila
Hirdető telefonszáma: +36 70 388 5176
Honlap: -