Bács-Kiskun megye, Bócsa
 

Ingatlan adatai
Irányár: 80 000 000 Ft
Típus: ház
Kategória: eladó
Alapterület: 192 m2
Fűtés: egyéb
Állapota: -
Szobák száma: 5
Építés éve: 2022
Szintek száma: -
Részletes leírás
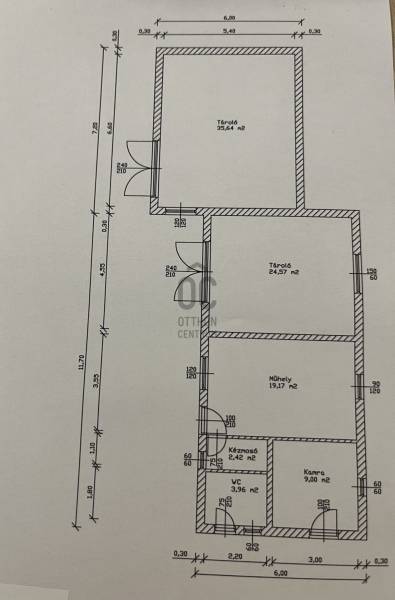
Bács-Kiskun megye, Bócsa külterületén kínálunk eladásra egy különleges adottságú, 37 098 nm-es (3,7 ha) ingatlant „kivett lakóház, udvar és szántó” besorolással. Aszfaltos úttól mindössze 700 méterre helyezkedik el, így nyugodt, csendes környezetben élhet, miközben könnyen megközelíthető.A területen két főépület és számos melléképület található, tökéletesen alkalmas többgenerációs együttélésre, gazdálkodásra vagy állattartásra.Főépületek:1. épület: 80 nm, beton alap, tégla falazat, 2022-ben épült, újszerű állapot.2. épület: 112 nm, tégla alap, vegyes falazat, 1960-as években épült, költözhető állapot.Különálló szoba + fürdő: vendégháznak vagy dolgozószobának ideális.Műszaki tartalom:-Vegyes tüzelésű kazán-3 db hűtő-fűtő klíma-8 kW napelem rendszer-Ipari áram (3×32 A)-3 db fúrt kút, melyek a házak vízellátását is biztosítjákGazdasági létesítmények:-210 nm beton aljzatos, lemezből készült nyitott hodály-100 nm ponyvás tároló-4 autó számára fedett beálló, 1 autó számára garázs-Kb. 200 nm területen használható ólakA terület ideális növénytermesztésre, állattartásra, önellátó gazdálkodásra, vagy akár vállalkozási célokra.„Az energetikai tanúsítvány készítése folyamatban van, amint rendelkezésre áll, úgy azzal a hirdetés frissítésre kerül.”Ne hagyja ki ezt a ritka lehetőséget! Két generáció kényelmes együttélése, gazdálkodási lehetőségek és a természet közelsége egy helyen várja új tulajdonosát. Hívjon még ma a megtekintésért!
További adatok
Telekterület: 37 098 m2
Kert mérete: 37 098 m2
Erkély mérete: 15 m2
Felszereltség: -
Parkolás: -
Kilátás: -
Egyéb extrák:  
-
Hirdető adatai
Hirdető neve: Otthon Centrum
Kapcsolattartó: Boros Julianna
Hirdető telefonszáma: +36 70 388 5866
Honlap: -