Somogy megye, Siófok
 

Ingatlan adatai
Irányár: 61 900 000 Ft
Típus: nyaraló
Kategória: eladó
Alapterület: 60 m2
Fűtés: elektromos
Állapota: új
Szobák száma: 3
Építés éve: 2026
Szintek száma: -
Részletes leírás
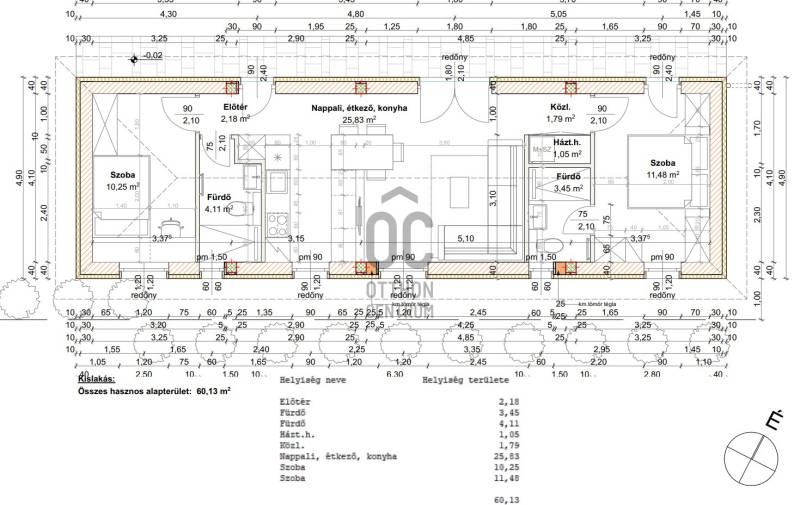
Siófokon, új építésű nyaraló eladó, két fürdőszobával – és nem azért, mert “divat”, hanem mert a valós életben ez így működik.A ház földszinti, 60,14 m², minden helyiség külön nyílik. A nappali–konyha 25,83 m², ami nem csak “nagy tér”, hanem ténylegesen használható közösségi tér. Két hálószoba (10,25 m² és 11,48 m²) van, mindkettő berendezhető méretű, nem “papírra rajzolt”.A két fürdőszoba WC-vel nem extra, hanem alapvető kényelem, ha többen vannak. Az ingatlan új építésű, üresen kerül átadásra, tehát nem a korábbi tulaj stílusát kell “túlélni”. Az elrendezés praktikus, a térkialakítás nem trükk, hanem valódi használhatóság.A telken 300 m² kert tartozik az ingatlanhoz, ami nyaralónál ritka és értékes előny.A kert használható, élhető, nem csak „zöld felület”. A parkolást felszíni kocsibeálló biztosítja, így a Balaton-közeli nyaralás nem a parkolókeresésről szól.Ez a nyaraló azoknak való, akik Siófokon nem a látványt, hanem a használhatóságot keresik. Akik nem a “balatoni álom” képeit gyűjtik, hanem egy olyan helyet, ahol tényleg jó lenni, nyáron és azon túl is.Ha „romantikus kis házikót” keres levendulával és túlméretezett szólamokkal, ez nem az az ingatlan.Ez azoknak való, akik számolni is tudnak.#siofok #aranypart_kozeleben #uj_haz #foldszintes #onallo_csaladi_haz #kulcsrakeszen #eladohaz #siofok #eladohazsiofok#belvaros
További adatok
Telekterület: 300 m2
Kert mérete: 300 m2
Erkély mérete: -
Felszereltség: -
Parkolás: -
Kilátás: -
Egyéb extrák:  
-
Hirdető adatai
Hirdető neve: Otthon Centrum
Kapcsolattartó: Bezzeg Nikoletta
Hirdető telefonszáma: +36 70 716 8431
Honlap: -