Vas megye, Sárvár
 

Ingatlan adatai
Irányár: 59 900 000 Ft
Típus: ház
Kategória: eladó
Alapterület: 70 m2
Fűtés: egyéb
Állapota: -
Szobák száma: 3
Építés éve: 2006
Szintek száma: -
Részletes leírás
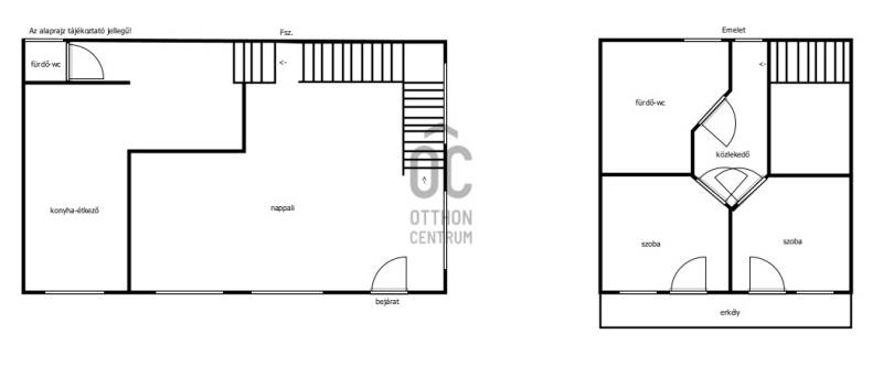
Sárvár csendes, nyugodt Hegyközségi részén kínálunk eladásra egy 2006-ban épült családi házat, mely 3569 nm-es területen helyezkedik el.Az ingatlan nappali +2 szobával, konyha-étkezővel, 2 fürdőszoba-wc-vel és erkéllyel rendelkezik -melyről gyönyörű panoráma tárul elénk a zöldellő területre.A nappaliban hatalmas üvegfelületeket alakítottak ki, ennek és a NY-i tájolásnak köszönhetően a ház szinte egész nap fényárban úszik. A nyitott födémes kialakítás miatt nagyon egyedi és tágas, világos hangulat jellemzi a helyiséget.A sok természetes, fa anyag felhasználásából adódóan az ingatlan teljesen beleillik a környezetbe. Itt a természet és az ember végtelen harmóniában élhet egy csendes, nyugodt helyen, közvetlen az erdő és annak sokszínű élővilága mellett.A nyílászáró fa, hő- és hangszigetelt. Az otthon melegéről kandalló gondoskodik, mely a hideg téli napokban tovább fokozza az ingatlan hangulatát és meghitt melegséget áraszt. Opcionálisan két hűtő-fűtő klíma is rendelkezésre áll az emeleti szobákban.Amennyiben minden álma egy egyedi enteriőrrel rendelkező, természetközeli, beleszeretős családi ház, ne habozzon, hívjon bizalommal! Ne maradjon le erről a kivételes lehetőségről!! Nézze meg minél előbb!Hitelre van szüksége? Az Otthon Centrum az ország egyik legnagyobb és legmegbízhatóbb hitelközvetítőjeként, teljes körű és díjmentes hitel ügyintézéssel, biztosításkötéssel áll rendelkezésére! Kérje személyre szabott ajánlatunkat Kollégáinktól!Válassza ki az Önnek legmegfelelőbbet!
További adatok
Telekterület: 3 569 m2
Kert mérete: 3 569 m2
Erkély mérete: -
Felszereltség: -
Parkolás: -
Kilátás: -
Egyéb extrák:  
-
Hirdető adatai
Hirdető neve: Otthon Centrum
Kapcsolattartó: Szolnoki Nóra
Hirdető telefonszáma: +36 70 388 5831
Honlap: -