Pest megye, Vác
 

Ingatlan adatai
Irányár: 91 900 000 Ft
Típus: ház
Kategória: eladó
Alapterület: 84 m2
Fűtés: -
Állapota: új
Szobák száma: 4
Építés éve: 2026
Szintek száma: -
Részletes leírás
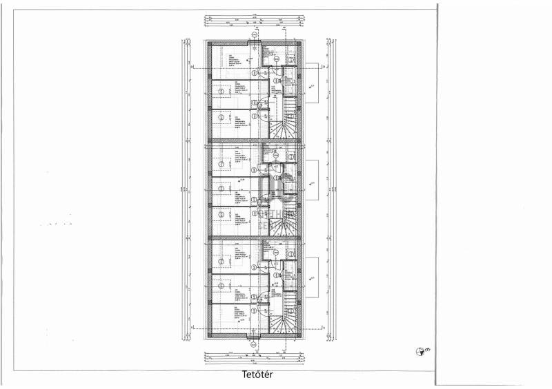
VÁCON a KASTÉLYLIGET LAKÓPARKBAN kínálunk eladásra ÚJ ÉPÍTÉSŰ sorházakat 2026-os átadással!A 3%-OS OTTHON START HITELRE ALKALMAS INGATLANOK!A vásárláshoz a CSOK+ és az ILLETÉKKEDVEZMÉNY is igénybe vehető. CÉGES ÉPÍTKEZÉS !KORSZERŰ ALACSONY ENERGIAIGÉNYŰ OTTHONOK 2026-os átadással.A 84 nm-es belső kétszintes lakások földszintjén konyha, gardrób, kamra, zuhanyzó+WC valamint egy kertkapcsolatos nappali-étkező kapott helyet.A tetőtérben három háló, fürdő+WC, és egy gardrób található.Az 597 nm-es telken 3 db külön bejáratú lakás található, eltérő méretű saját használatú kerttel, és kocsibeállóval. Az első ütemben megépült 16 db nagyobb méretű ikerház már átadásra került .Jelen hirdetés a középső lakásra vonatkozik!A jelenleg épülő 3 és 4 lakásos sorházak belső kétszintesek, 71 nm, 73 nm, 84 nm, és 96 nm-es kivitelben elérhetőek.Választható lakások:- 71 nm-es. Vételár :75,9-79,9 M Ft.- 73 nm-es . Vételár: 75,9 M Ft.- 84 nm-es. Vételár: 85,9-98,9 M Ft.- 96 nm-es. Vételár:97,9-99,9 M Ft.A sorház modern stílusban praktikus elosztással lett tervezve, hogy minél élhetőbb és barátságosabb otthont biztosítson a leendő tulajdonosának és családjának.Csendes nyugodt környék, átmenőforgalomtól mentes külvárosias környezetben,Átgondolt tervezés, minőségi anyaghasználat és precíz kivitelezés egy megbízható referenciákkal bíró kivitelezőtől.Műszaki paraméterek:-Sávalapozás 60 cm szélességben. Külső falazat 30 cm-es kerámia blokk+15 cm homlokzati szigetelés-Lakáselválasztó fal 30-as hanggátló téglából.-Földszinten műanyag nyílászárók 3 rétegű üvegezéssel, kiegészítve beépített hőszigetelt redőnytokkal elektromos előkészítéssel.-Hőszivattyús fűtés, a földszinten és az emeleten is padlófűtéssel.-Elektromos és gépészeti előcsövezés a fan-coil rendszerhez.-Opcionális lehetőség a teljes fan-coil rendszer kivitelezéséhez.-Riasztó és kaputelefon előkészítés.-Az elektromos hálózat 1x32A, de 3 fázisra bővíthetőségre előkészítve.-H tarifás mérőóra.Közlekedés:-Buszmegálló 5 perc sétával elérhető, ahonnan a Vác-alsóvárosi vasútállomás 3 perc-Vác-Alsóváros-Bp Nyugati pályaudvar 29 perc vonattal-Autóval az M2-es autóúton 20 perc alatt elérhető BudapestAmivel segíteni tudjuk az Ön ingatlanvásárlását:-ingyenes, bankfüggetlen hitelügyintézés-értékbecslés-jogi háttér-földhivatali ügyintézés-energetikai tanúsítvány készítéseAmennyiben a hirdetés felkeltette érdeklődését kérem forduljon hozzám bizalommal.Projekt bemutatásaVÁCON A KASTÉLYLIGET LAKÓPARKBAN KÍNÁLUNK ELADÁSRA ÚJ ÉPÍTÉSŰ SORHÁZAKAT.A vásárláshoz a CSOK+ és az ILLETÉKKEDVEZMÉNY is igénybe vehető.CÉGES ÉPÍTKEZÉS!A 71 nm-es belső kétszintes lakások földszintjén konyha, WC valamint egy kertkapcsolatos nappali-étkező kapott helyet.A tetőtérben két háló, fürdő,+WC, és egy gardrób található.A 600-800 nm-es telken 3 db lakás található eltérő méretű saját használatú kerttel és kocsibeállóval.Az első ütemben megépült 16 db nagyobb méretű ikerházak már átadásra kerültek.A második ütemben folyamatosan épülő 3 és 4 lakásos sorházak belső kétszintesek, 71 nm, 73 nm, 84 nm, és 96 nm-es kivitelben elérhetőek.Minden lakáshoz külön bejárat, saját használatú változó nagyságú körbekerített kert és kocsibeálló tartozik.Választható lakások:- 71 nm-es. Földszintjén konyha, WC, étkező, kertkapcsolatos nappalival. Tetőtérben 2 háló, fürdő+WC,és gardrób.Vételár :75,9-79,9 M Ft.- 73 nm-es . Földszinten konyha-étkező, kertkapcsolatos nappali, tároló, fürdő+WC. Tetőtérben 2 háló , közlekedő, fürdő+WC.Vételár: 75,9 M Ft.- 84 nm-es. Földszinten konyha-étkező, nappali kertkapcsolattal, kamra, fürdő+WC, gardrób. Tetőtérben 3 háló, fürdő+WC, gardrób.Vételár: 88,9-98,9 M Ft.- 96 nm-es. Földszinten 1 háló, konyha-étkező, kertkapcsolatos nappali, fürdő+WC és tároló. Tetőtérben 2 háló, dolgozószoba, és fürdő.Vételár: 97,9-99,9 M Ft.A lakások modern stílusban praktikus elosztással lett tervezve, hogy minél élhetőbb és barátságosabb otthont biztosítson a leendőtulajdonosának és családjának. Csendes nyugodt környék, átmenőforgalomtól mentes külvárosias környezetben.Rendezett környék aszfaltozott úthálózattal, közvilágítással, térkövezett parkolóval, járdákkal.Átgondolt tervezés, minőségi anyaghasználat és precíz kivitelezés egy megbízható referenciákkal bíró kivitelezőtől.Műszaki paraméterek:-Sávalapozás 60 cm szélességben. Külső falazat 30 cm-es kerámia blokk+15 cm homlokzati szigetelés-Lakáselválasztó fal 30-as hanggátló téglából.-Földszinten műanyag nyílászárók 3 rétegű üvegezéssel, kiegészítve beépített hőszigetelt redőnytokkal elektromos előkészítéssel.-Hőszivattyús fűtés, a földszinten és az emeleten is padlófűtéssel.-Elektromos és gépészeti előcsövezés a fan-coil rendszerhez.-Opcionális lehetőség a teljes fan-coil rendszer kivitelezéséhez.-Riasztó és kaputelefon előkészítés.-Az elektromos hálózat 1x32A, de 3 fázisra bővíthetőségre előkészítve.-H tarifás mérőóra.Közlekedés:-A buszmegálló 5 perc sétával elérhető, ahonnan a Vác-alsóvárosi vasútállomás 3 perc-Vác-Alsóváros-Bp Nyugati pályaudvar 29 perc vonattal-Autóval az M2-es autóúton 20 perc alatt elérhető BudapestAmivel segíteni tudjuk az Ön ingatlanvásárlását:-ingyenes, bankfüggetlen hitelügyintézés-jogi háttér-földhivatali ügyintézés-energetikai tanúsítvány készítése-értékbecslésAmennyiben a hirdetés felkeltette érdeklődését kérem forduljon hozzám bizalommal.
További adatok
Telekterület: 600 m2
Kert mérete: 600 m2
Erkély mérete: -
Felszereltség: -
Parkolás: -
Kilátás: -
Egyéb extrák:  
-
Hirdető adatai
Hirdető neve: Otthon Centrum
Kapcsolattartó: Prencsok Tamás
Hirdető telefonszáma: +36 70 412 3686
Honlap: -