Budapest, XIII.kerület
 

Ingatlan adatai
Irányár: 53 990 000 Ft
Típus: lakás (tégla)
Kategória: eladó
Alapterület: 39 m2
Fűtés: gáz (konvektor)
Állapota: felújítást igényel
Szobák száma: 1
Építés éve: 1950
Szintek száma: 2
Részletes leírás
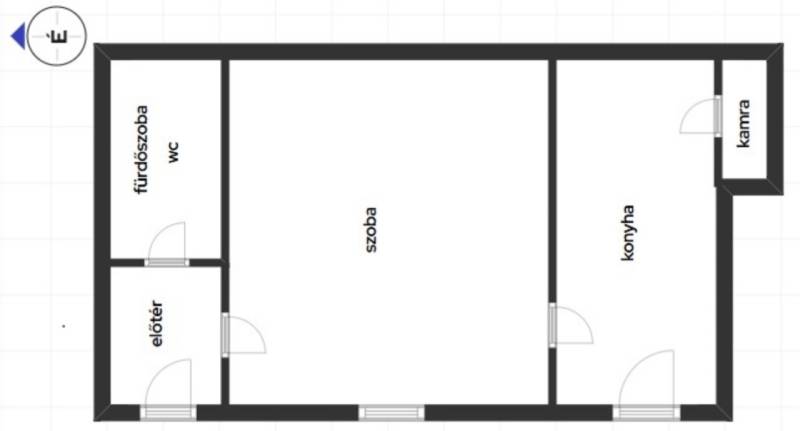
Eladó felújítandó téglaépítésű lakás Budapest 13. kerületében a Zsilip utcában.A lakás a társasház 2. emeletén található, 39 m² alapterülettel. Megközelítése függő folyosóról történik, két külön bejáraton keresztül. Az egyik bejáraton egy előszobába érkezünk, ahonnan külön nyílik a szoba, valamint a fürdőszoba WC- vel. A konyha megközelíthető a szobán keresztül, illetve a másik bejárati ajtón át is. A konyhából egy praktikus kis kamra nyílik.A fűtést gázkonvektor biztosítja, a melegvíz ellátásról a gázkazán gondoskodik.A lakásból a kilátás parkosított, csendes belső udvarra néző, ahol Hatalmas fa, kiülésre alkalmas padok és gondozott kert várja a lakókat. Ideális választás lehet befektetőknek, vagy azok számára akik csendes , zöldkertes, urbanisztikus környezetben szeretnének élni. Az infrastruktúra és a közlekedés kiváló az M3 metró néhány perc alatt elérhető.ID:391989
További adatok
Telekterület: -
Kert mérete: -
Erkély mérete: -
Felszereltség: -
Parkolás: -
Kilátás: udvari
Egyéb extrák:  
-
Hirdető adatai
Hirdető neve: GDN Ingatlanhálózat
Kapcsolattartó: Füredi Felícia
Hirdető telefonszáma: +36-30-828-2621
Honlap: -