Pest megye, Tahitótfalu
 

Ingatlan adatai
Irányár: 105 000 000 Ft
Típus: ház
Kategória: eladó
Alapterület: 107 m2
Fűtés: gáz (cirko)
Állapota: -
Szobák száma: 4
Építés éve: 2010
Szintek száma: -
Részletes leírás
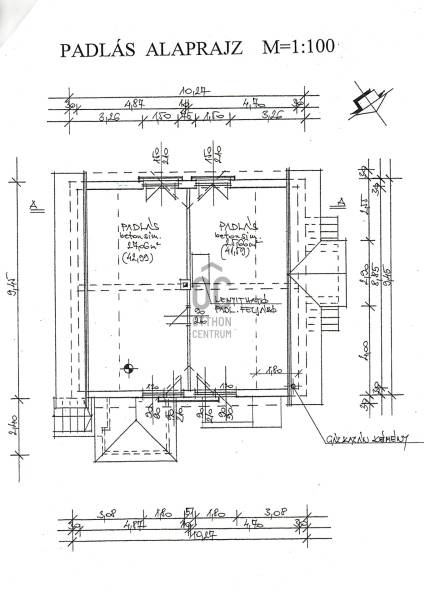
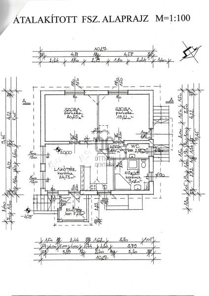
Eladó Tahitótfalun (Tótfalu városrészben), nyugodt, rendezett környezetben, jól megközelíthető utcában egy igényesen átépített családi ház.A 948 m²-es, szabályos téglalap alakú telek gyümölcsfákkal beültetett, gondozott, a telken belül 2–3 autó parkolása biztosított.Az ingatlan 2010-ben teljes körű átépítésen esett át, jelenlegi hasznos alapterülete az alsó szinten 83 m².Az épület jellemzői:38-as és 30-as tégla falazat10 cm EPS homlokzati hőszigetelés, szigetelt aljzat és födémRehau Geneo, 3 rétegű, 7 légkamrás nyílászárók, Maco vasalattalAz alsó szinten elektromos és kézi mozgatású redőnyökFűtés és komfort:Gáz cirkó fűtés (melegvíz-tárolós kombi kazán)Fatüzelésű kandallókályhaGree Amber Royal, fűtésre optimalizált klímák, H-tarifás mérőórávalKözművek:Az ingatlan összközműves:villany (normál tarifa 3 fázis + H-tarifa 3 fázis)gáz, víz, csatornainternet, riasztórendszerHelyiségek elosztása:Alsó szint:2 külön nyíló szoba (az egyikben leválasztott gardrób)amerikai konyhás nappalifürdőszoba WC-vel, zuhanyzóval és káddalkülön WC bidével és piszoárral, hideg-meleg vizes kiállássalelőszoba, közlekedőaz alsó szint két utcáról megközelíthető, két külön bejárattal rendelkezik, ami akár vállalkozás vagy kétlakásos használat szempontjából is ideálisFelső szint:A tetőtér beépítésével az ingatlan kétgenerációssá alakítható.kb. 60 m² hasznos alapterülethomlokzati nyílászárók beépítveteljesen új tetőszerkezet, vastag faanyaggalLeier beton cserép fedésközműkiállások kiépítveEgyéb:24 m²-es pincemelléképületekIrányár: 105.000.000 FtKeressen bizalommal, minden kérdésre szívesen válaszolok!
További adatok
Telekterület: 948 m2
Kert mérete: 948 m2
Erkély mérete: 6 m2
Felszereltség: -
Parkolás: -
Kilátás: -
Egyéb extrák:  
-
Hirdető adatai
Hirdető neve: Otthon Centrum
Kapcsolattartó: Déri Dóra
Hirdető telefonszáma: +36 70 388 5061
Honlap: -